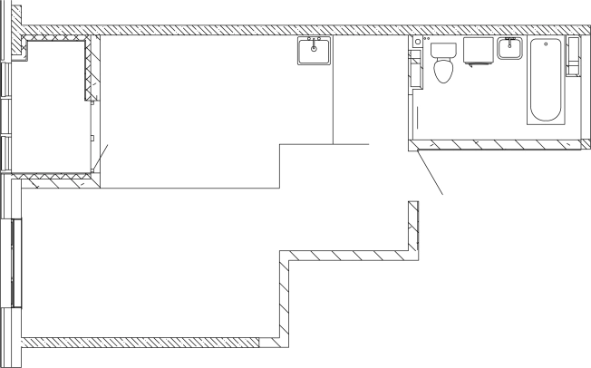
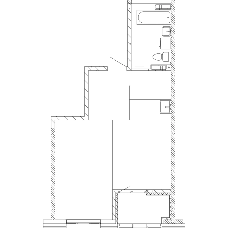
Продается 1-комн. квартира, 46.79 м²
Россия, Приморский край, Владивосток, жилой комплекс Посейдония, 2
46.79 м²
Общая площадь
38.18 м²
Жилая площадь
6 м²
Площадь кухни
8 из 23
Этаж
Описание
Морской квартал расположен на возвышенности в бухте Патрокл, откуда открываются прекрасные виды на море и русский мост. Отсюда, с большой ротонды можно наблюдать за морской стихией и посылать удачу всем, кто находится в море.
Новый жилой комплекс представляет собой 11 жилых домов от 10 до 23 этажей. Это единственный комплекс в районе б. Патрокл, оборудованный подземной парковкой и отделенный сопкой от остальных строящихся домов. Строительство и сдача домов разбиты на несколько очередей.
Концепция всего пространства определена месторасположением и непосредственной близостью к морю. Морская тематика прослеживается во всех зонах и площадках. Жители Владивостока, и в особенности те, кто влюблен в море, должны пользоваться всеми преимуществами жизни на морском побережье. Красивые места рядом - Бухта Соболь, Набережная ДВФУ, Леопардовая набережная, Бухта Патрокл, Набережная Ахлестышева, Скала Диван.
Жилой комплекс расположен в 5 минутах пешком от моря, в 10 минутах от набережной ДВФУ и 15 минутах до центра. Рядом находятся торговый центр, супермаркеты, детские сады, детский бассейн, медицинская клиника.
О квартире
Общая площадь
46.79 м²
Жилая площадь
38.18 м²
Площадь кухни
6 м²
Подъезд
1
Этаж
8
Окна выходят
На улицу
О доме
Год постройки
2025
Этажность
23
Количество подъездов
1
Материал постройки
Монолитный
Материал перекрытий
Ж/б плиты
Отопление
Центральное
Парковка
Многоуровневая
Расположение
Россия, Приморский край, Владивосток, жилой комплекс Посейдония, 2
Ипотечный калькулятор
Заполните 1 анкету — получите предложения от десятков банков на специальных условиях
Программа ипотеки
Стоимость жилья, ₽
Первый взнос, ₽
Срок кредита
от 5.75%
Ставка
от 77 177 ₽
Платеж в месяц
Расчёт носит информационный характер и не является публичной офертой
Похожие объекты


















1-комн. квартира, 42,0 м², 17/23 эт.


















1-комн. квартира, 42,0 м², 21/23 эт.



















1-комн. квартира, 46,8 м², 3/23 эт.















1-комн. квартира, 46,8 м², 3/10 эт.
Консультант по новостройкам
12 267 636 ₽
262 185 ₽/м²























