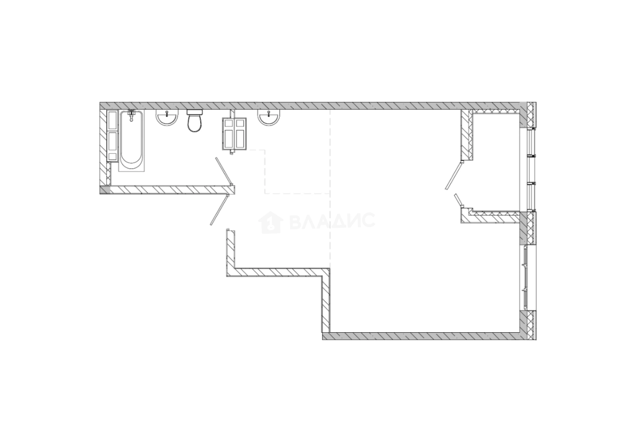
Продается 1-комн. квартира, 47.88 м²
Россия, Приморский край, Владивосток, жилой комплекс Посейдония
47.88 м²
Общая площадь
47.88 м²
Жилая площадь
16 из 23
Этаж
Описание
Морской квартал расположен на возвышенности в бухте Патрокл, откуда открываются прекрасные виды на море и русский мост. Отсюда, с большой ротонды можно наблюдать за морской стихией и посылать удачу всем, кто находится в море.
Новый жилой комплекс представляет собой 11 жилых домов от 10 до 23 этажей. Это единственный комплекс в районе б. Патрокл, оборудованный подземной парковкой и отделенный сопкой от остальных строящихся домов. Строительство и сдача домов разбиты на несколько очередей.
Концепция всего пространства определена месторасположением и непосредственной близостью к морю. Морская тематика прослеживается во всех зонах и площадках. Жители Владивостока, и в особенности те, кто влюблен в море, должны пользоваться всеми преимуществами жизни на морском побережье. Красивые места рядом - Бухта Соболь, Набережная ДВФУ, Леопардовая набережная, Бухта Патрокл, Набережная Ахлестышева, Скала Диван.
Жилой комплекс расположен в 5 минутах пешком от моря, в 10 минутах от набережной ДВФУ и 15 минутах до центра. Рядом находятся торговый центр, супермаркеты, детские сады, детский бассейн, медицинская клиника.
О квартире
Общая площадь
47.88 м²
Жилая площадь
47.88 м²
Подъезд
2
Этаж
16
Окна выходят
На улицу
О доме
Год постройки
2026
Этажность
23
Количество подъездов
1
Материал постройки
Монолитный
Материал перекрытий
Ж/б плиты
Отопление
Центральное
Парковка
Многоуровневая
Расположение
Россия, Приморский край, Владивосток, жилой комплекс Посейдония
Ипотечный калькулятор
Заполните 1 анкету — получите предложения от десятков банков на специальных условиях
Программа ипотеки
Стоимость жилья, ₽
Первый взнос, ₽
Срок кредита
от 5.75%
Ставка
от 64 762 ₽
Платеж в месяц
Расчёт носит информационный характер и не является публичной офертой
Похожие объекты


















1-комн. квартира, 42,0 м², 8/23 эт.



















1-комн. квартира, 42,0 м², 15/23 эт.


















1-комн. квартира, 41,4 м², 10/23 эт.


















1-комн. квартира, 41,4 м², 7/23 эт.
Консультант по новостройкам
10 294 200 ₽
215 000 ₽/м²
































