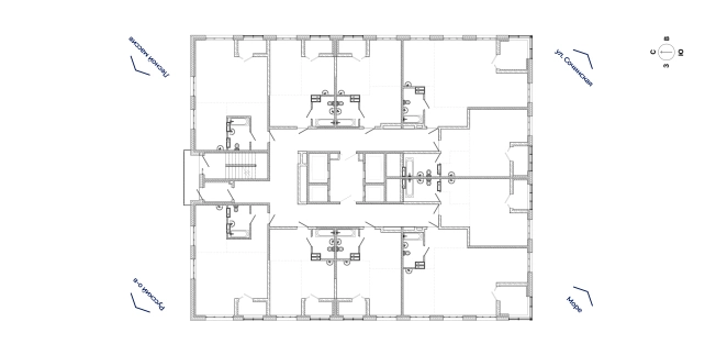
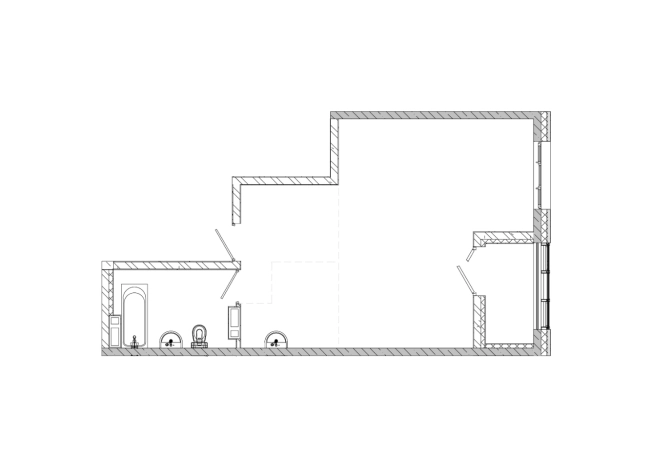
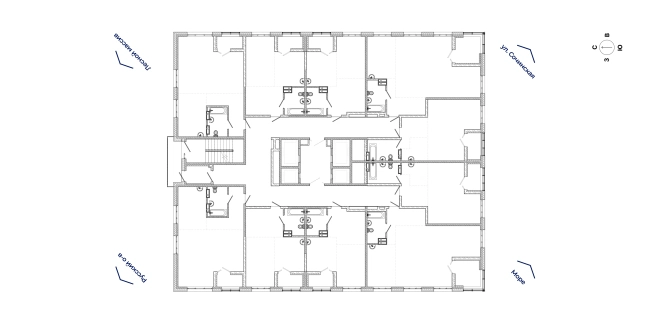
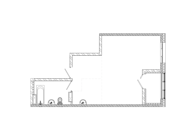
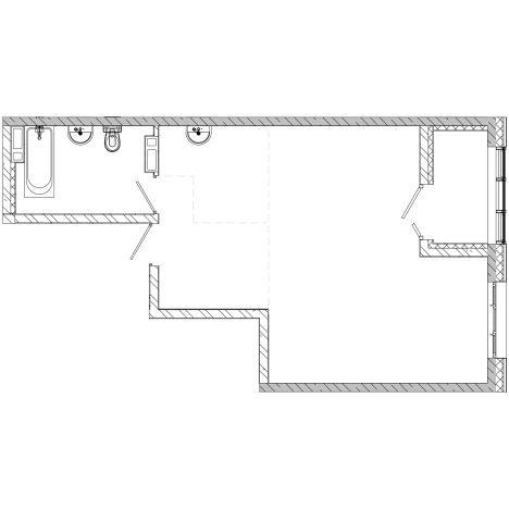
Продается 3-комн. квартира, 52.96 м²
Россия, Приморский край, Владивосток, Первомайский район
52.96 м²
Общая площадь
20 из 29
Этаж
Описание
Жилой квартал с панорамными видами на лесной массив, город и водную гладь бухты Соболь. Закрытая благоустроенная территория с комплексной системой видеонаблюдения, зонами отдыха для жильцов любого возраста, детскими и спортивными площадками. Предусмотрено зонирование территории для отдыха взрослых и детей, спортивные площадки, запроектированные тротуары и дороги для беспрепятственного перемещения малогабаритных групп.
Цветовая гамма фасадов жилого комплекса выдержана в строгих монохромных цветах, в соответствии с проектом зон охраны объекта культурного наследия федерального значения Береговой батареи "Соболь". Входные группы с без барьерным доступом, в которых предусмотрено место для консьержа или службы внутреннего контроля. В проекте предусмотрены: встроенный паркинг в стилобате зданий с поддержанием плюсовой температуры, открытая пятиуровневая парковка и гостевые парковки на территории жилого комплекса с контролем доступа жильцов.
Большой выбор планировочных решений, квартиры формата Smart Vision, предусматривающие возможность реализации любых дизайнерских решений (максимальный уровень естественного освещения в квартире и наиболее эффективное деление на комнаты).
Резидентов ждут заботливо отобранные застройщиком компании – магазин у дома, популярная аптечная сеть, пункт выдачи заказов, лучшие развивающие секции и клубы для детей. Создан автономный микрорайон с максимальным уровнем комфорта.
О квартире
Общая площадь
52.96 м²
Этаж
20
Окна выходят
На улицу
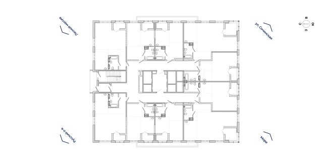
О доме
Год постройки
2027
Этажность
29
Количество подъездов
1
Материал постройки
Кирпично-монолитный
Материал перекрытий
Монолитные
Отопление
Центральное
Парковка
Подземная
Расположение
Россия, Приморский край, Владивосток, Первомайский район
Ипотечный калькулятор
Заполните 1 анкету — получите предложения от десятков банков на специальных условиях
Программа ипотеки
Стоимость жилья, ₽
Первый взнос, ₽
Срок кредита
от 5.75%
Ставка
от 55 557 ₽
Платеж в месяц
Расчёт носит информационный характер и не является публичной офертой
Похожие объекты













1-комн. квартира, 48,1 м², 7/23 эт.
















1-комн. квартира, 48,1 м², 5/23 эт.













1-комн. квартира, 48,1 м², 5/23 эт.
















1-комн. квартира, 48,5 м², 2/23 эт.
Консультант по новостройкам
8 831 080 ₽
166 750 ₽/м²
























