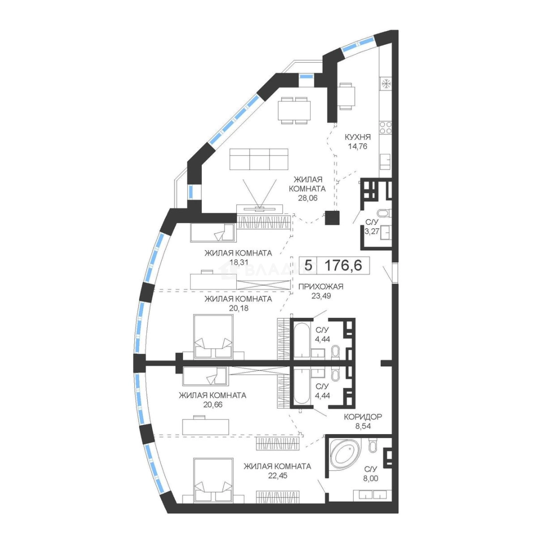
Продается 5-комн. квартира, 176.6 м²
Россия, Приморский край, Владивосток, Океанский проспект, 52А
176.6 м²
Общая площадь
11 из 23
Этаж
Описание
Главные преимущества Атлантикс Сити:
В самом Центре Владивостока
Жилой комплекс расположен в центре города на пересечении Океанского проспекта, улиц Комсомольской и Хабаровской.
Качество премиум-класса во всём:
Мы уделили особое внимание качеству технологий, работ и материалов.
Самая полная инфраструктура:
Инфраструктура жилого дома предполагает выполнение множества дел без необходимости выхода за пределы дома.
Концепция проекта:
Футуристический архитектурный ансамбль состоит из двух 24-этажных башен
и монументальной стилобатной части высотой в пять этажей. 176 квартир свободной планировки, площадью от 69 до 389 кв. м. Практически из каждой квартиры открывается роскошный вид на Амурский залив и город Владивосток. На последних, 23 и 24 этажах, располагаются двухуровневые пентхаусы.
К разработке концепции жилого комплекса привлечена одна из ведущих компаний на строительном рынке региона —ООО «Спецтехнологии» (Москва). Проектом предусматривается строительство двух 24-этажных жилых башен на пятиэтажном стилобате с встроенным в него торговым центром и паркингом. При проектировании комплекса обеспечено единое архитектурное и композиционное решение, обеспечена простота и выразительность фасадов, а также предусмотрено применение самых современных конструкций и отделочных материалов.
Светопрозрачные конструкции фасада SCHUECO
Европейский бренд SCHUECO давно зарекомендовал себя на мировом рынке строительства. Материалы и технологии компании не только отвечают всем мировым стандартам, но и диктуют их.
Сотни разработчиков, архитекторов, конструкторов реализуют долговечные оболочки зданий, которые служат человеку, при этом находясь в гармонии с природой и современными технологиями. Профили SCHUECO — это не только качество, но и безопасность: пожароустойчивость и защита от сильных морских ветров и морозов.
Просторное Лобби:
Комфорт даже за пределами вашей квартиры — задача проектировщиков и дизайнеров Атлантикс Сити. Светлые, просторные лобби, выполненные в неоклассическом стиле, задают высокий статус жильцов дома и их гостей.
Скоростные лифты:
По 3 современных скоростных и бесшумных лифта предусмотрены в каждой башне. Это количество оптимально по соотношению квартир и означает, что вам не придется ждать лифт в часы пик утром и вечером.
Эксплуатируемая кровля стилобатной части:
Кровля стилобатной части здания плоская, эксплуатируемая с устройством озеленения и цветников, территориями для отдыха и спорта, детскими площадками.
Крытый паркинг
Для удобства жителей жилого комплекса в стилобатной части будет расположен просторный теплый паркинг, с прямым доступом с жилого этажа.
Система «Город в городе»
Атлантикс Сити — это уникальный проект, воплощающий собой систему «Город в городе». К услугам жителей жилого комплекса будет представлена самая полная и насыщенная инфраструктура, где можно комфортно заниматься различными активностями, не выходя за пределы комплекса.
На трех этажах Торгового центра будет расположен современный супермаркет, торговая галерея, детский супермаркет, развлекательный центр, фуд-корт пространство, объединяющее в себе лучшие ресторанные концепции от известных рестораторов и уютную атмосферу
Свернуть
О квартире
Общая площадь
176.6 м²
Подъезд
2
Этаж
11
Окна выходят
На улицу
Ремонт
Стяжка-штукатурка
О доме
Год постройки
2025
Этажность
23
Количество подъездов
1
Материал постройки
Кирпично-монолитный
Материал перекрытий
Монолитные
Отопление
Центральное
Парковка
Многоуровневая
Расположение
Россия, Приморский край, Владивосток, Океанский проспект, 52А
Ипотечный калькулятор
Заполните 1 анкету — получите предложения от десятков банков на специальных условиях
Программа ипотеки
Стоимость жилья, ₽
Первый взнос, ₽
Срок кредита
от 5.75%
Ставка
от 288 861 ₽
Платеж в месяц
Расчёт носит информационный характер и не является публичной офертой
Похожие объекты










5-комн. квартира, 175,6 м², 20/23 эт.










4-комн. квартира, 161,5 м², 14/23 эт.










5-комн. квартира, 175,6 м², 21/23 эт.










4-комн. квартира, 161,5 м², 15/23 эт.
Консультант по новостройкам
45 916 000 ₽
260 000 ₽/м²











