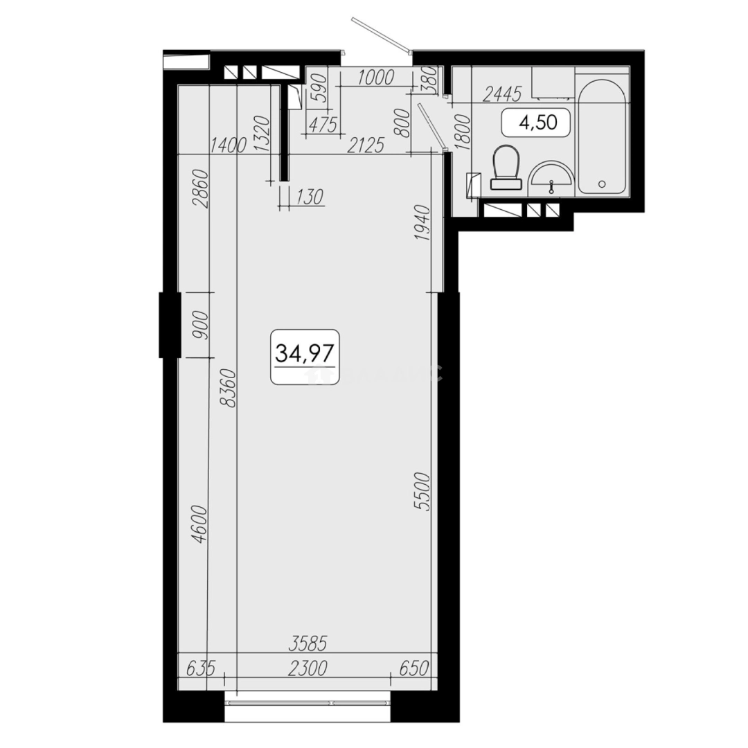
Продается 1-комн. квартира, 34.97 м²
Россия, Приморский край, Владивосток, Верхняя улица, 20
34.97 м²
Общая площадь
22 м²
Жилая площадь
11 из 15
Этаж
Описание
Первая очередь будет расположена в районе улиц Верхняя и Высокая - на сопке Шошина в районе 3-ей Рабочей, с которой открывается потрясающий панорамный вид на Владивосток и Амурский залив. Общая транспортная доступность локации жилого квартала находится вблизи основных транспортных развязок (Котельникова, Баляева, Луговая, Красного Знамени) и позволяет без труда добраться в различные районы города.
Более трети площади квартала будут занимать общественные пространства с пешеходными дорожками, где каждый житель, не выезжая за пределы комплекса, сможет наслаждаться прогулками, утренними пробежками, спортом в фитнес-зонах или играми с детьми на площадках. Дополнительная спортивная площадка и места для отдыха расположатся на эксплуатируемой крыше, откуда будет открываться прекрасный вид на город и залив. Также каждый двор будет зонирован с учётом интересов жителей всех возрастов. Здесь появятся детский образовательный центр, функциональный коворкинг, минимаркет, кофейня, фитнес-центр, спа-салон и салон красоты.
В корпусах организованы кладовые помещения для хранения велосипедов, сезонных вещей и редко используемой техники. Для автомобилистов - крытый 4-х уровневый паркинг на 347 машино-мест, который расположится в стилобатной части трехсекционного дома. В паркинговой зоне предусмотрена автомойка и два поста для зарядки электромобилей.
В местах общего пользования будут установлены системы видеонаблюдения направленных на входную группу, лобби, въезд и выезд с паркинга, лифтовые холлы и на эксплуатируемую кровлю. Круглосуточное наблюдение 24/7 по периметру всех домов.
На первых этажах разместятся дизайнерское лобби, места для встречи гостей и зоны отдыха. Мягкие благородные тона, стилистические решения и качественные отделочные материалы создадут камерную обстановку для жителей и гостей жилого комплекса.
Можно дозаказать отделку у застройщика – предчистовую и чистовую.
О квартире
Общая площадь
34.97 м²
Жилая площадь
22 м²
Подъезд
3
Этаж
11
Окна выходят
На улицу
О доме
Год постройки
2026
Этажность
15
Количество подъездов
3
Материал постройки
Кирпично-монолитный
Материал перекрытий
Монолитные
Отопление
Электрическое
Парковка
Подземная
Расположение
Россия, Приморский край, Владивосток, Верхняя улица, 20
Ипотечный калькулятор
Заполните 1 анкету — получите предложения от десятков банков на специальных условиях
Программа ипотеки
Стоимость жилья, ₽
Первый взнос, ₽
Срок кредита
от 5.75%
Ставка
от 48 840 ₽
Платеж в месяц
Расчёт носит информационный характер и не является публичной офертой
Похожие объекты













1-комн. квартира, 32,7 м², 10/19 эт.




















1-комн. квартира, 38,0 м², 16/23 эт.
Консультант по новостройкам
7 763 340 ₽
222 000 ₽/м²



































