Продается 1-комн. квартира, 55.7 м²
Россия, Приморский край, Владивосток, улица Старцева, 57к1
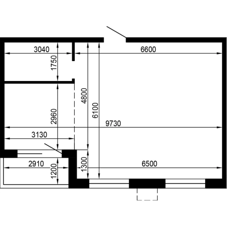
55.7 м²
Общая площадь
3 из 4
Этаж
Описание
ЖК «Весна» — это малоэтажные жилые дома в районе улицы Бриннера (рядом с пос. Радово).
Закрытый поселок-парк в пригороде Владивостока предусматривает безопасный двор без машин, несколько детских и спортивных площадок разного направления на территории и собственный парк.
Также на территории предусмотрена огороженная площадка для выгула и профессиональной тренировки собак. Тренажеры, пакеты для уборки за животным и двойной вход обеспечивают безопасность как жителей, так и питомцев.
В цокольном этаже каждого дома предусмотрены кладовые площадью от 9 до 14 кв. м. для хранения нужных, но редко используемых вещей — автошин, колясок, велосипедов, туристического или спортивного инвентаря.
Рядом с домами расположена большая и просторная парковка открытого типа.
К территории посёлка-парка прикреплен школьный автобус, который курсирует между поселком и школой №37, и обратно.
Посёлок-парк «Весна» полностью интегрирован в лесную зону с максимальным сохранением живого озеленения. Кольцевая подъездная дорога с односторонним движением расположена по внешнему периметру посёлка. Во дворе своего дома, жители смогут насладиться отдыхом в парке с зелеными аллеями и прогулочными зонами.
Проезд к ЖК «Весна» осуществляется с ул. Старцева. Генеральным планом предусмотрена застройка 3-х участков, площадью 20Га. Всего 4 очереди строительства.
О квартире
Общая площадь
55.7 м²
Подъезд
2
Этаж
3
Окна выходят
На улицу
Ремонт
Стяжка-штукатурка
О доме
Год постройки
2025
Этажность
4
Количество подъездов
3
Материал постройки
Кирпично-монолитный
Материал перекрытий
Монолитные
Отопление
Электрическое
Парковка
Наземная
Расположение
Россия, Приморский край, Владивосток, улица Старцева, 57к1
Ипотечный калькулятор
Заполните 1 анкету — получите предложения от десятков банков на специальных условиях
Программа ипотеки
Стоимость жилья, ₽
Первый взнос, ₽
Срок кредита
от 5.75%
Ставка
от 59 571 ₽
Платеж в месяц
Расчёт носит информационный характер и не является публичной офертой
Похожие объекты





1-комн. квартира, 54,3 м², 2/4 эт.





1-комн. квартира, 55,8 м², 4/4 эт.




1-комн. квартира, 60,8 м², 2/4 эт.





1-комн. квартира, 60,8 м², 3/4 эт.
Консультант по новостройкам
9 469 000 ₽
170 000 ₽/м²





