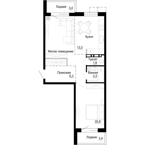
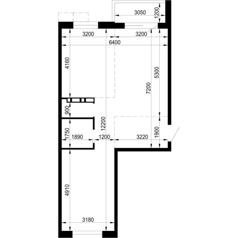
Продается 1-комн. квартира, 59.1 м²
Россия, Приморский край, Владивосток, улица Лесопитомник, 1Бк4
59.1 м²
Общая площадь
4 из 5
Этаж
Описание
Жить в красивом месте, в хорошем доме, на природе, но близко к городу — все возможно в ЖК «Андерсен»!
В «Андерсене» все квартиры с удобными планировками, в домах по 4 этажа.
Увеличенные потолки на верхних этажах и квартиры с террасами на первых этажах. Квартиры со вторым светом в типе «Скандинавия»!
Места для велопрогулок, пикников и занятий спортом, детские площадки и кинотеатр под открытым небом, пешеходные зоны и просторные открытые парковки.
В «Андерсене» эстетика сочетается с функциональностью, развитая инфраструктура стала неотъемлемой частью жилого комплекса:
• Кладовые на первых этажах, в которых можно хранить всё что угодно!
• Автомойка на территории ЖК
• Собственный автобус для поездок в школу, кружки и секции.
• Коворкинг и детский центр
• Плейхаб для игр, тренировок, общения и отдыха.
• Помещения под магазины, офисы, аптеки и пекарни на первых этажах!
6 Причин переехать в Андерсен
1 Экологически чистый район с удобной транспортной доступностью
2 Большая охраняемая территория с продуманным благоустройством
3 Уникальный плэйхаб для занятий спортом, общения и отдыха
4 Преимущества жилого комплекса: коворкинг, школьный автобус и детский центр
5 Парковочных мест больше, чем квартир во всем жилом комплексе
6 Большой выбор квартир с дизайнерским ремонтом и под отделку
Более 5 гектаров благоустроенной парковой территории
Свыше 30% всей площади поселка занимает зеленая парковая зона с сохраненными многолетними деревьями. Летние прогулки в тени деревьев, чистый воздух — это не роскошь, а ваш образ жизни.
О квартире
Общая площадь
59.1 м²
Подъезд
1
Этаж
4
Окна выходят
На улицу
О доме
Год постройки
2025
Этажность
5
Количество подъездов
1
Материал постройки
Кирпично-монолитный
Материал перекрытий
Монолитные
Отопление
Электрическое
Парковка
Наземная
Расположение
Россия, Приморский край, Владивосток, улица Лесопитомник, 1Бк4
Ипотечный калькулятор
Заполните 1 анкету — получите предложения от десятков банков на специальных условиях
Программа ипотеки
Стоимость жилья, ₽
Первый взнос, ₽
Срок кредита
от 5.75%
Ставка
от 66 181 ₽
Платеж в месяц
Расчёт носит информационный характер и не является публичной офертой
Похожие объекты




1-комн. квартира, 60,4 м², 3/4 эт.





1-комн. квартира, 60,6 м², 3/4 эт.





1-комн. квартира, 60,7 м², 4/4 эт.





1-комн. квартира, 60,3 м², 4/4 эт.
Консультант по новостройкам
10 519 800 ₽
178 000 ₽/м²







