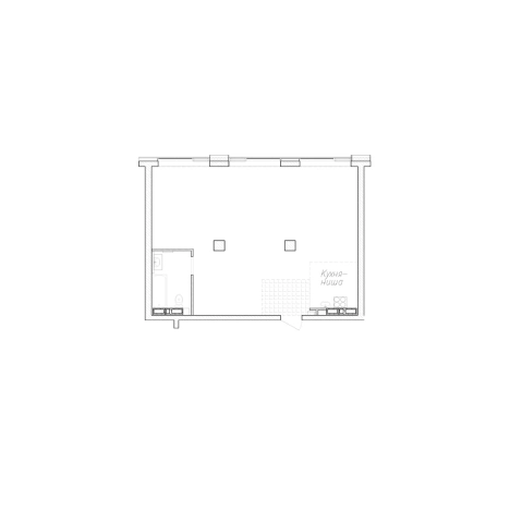
2-комн. квартира · 69.6 pм² · 4/26 эт.
Россия, Приморский край, Владивосток, улица Маковского, 55к4
69.59 м²
Общая площадь
69.59 м²
Жилая площадь
4 из 26
Этаж
Описание
Жилой комплекс состоит из трех 26-этажных домов. Кроме них будут возведены 7-этажный бизнес-центр и 3-этажный паркинг.
Проект жилого комплекса делит его пространство на несколько зон, объединённых единой концепцией – создание уюта загородного участка в современном городском дворе.
В озеленении территории будут использоваться многочисленные виды деревьев и кустарников, в том числе плодовых, а также предусмотрено размещение большого количества клумб и горшечных растений.
На территории комплекса предусмотрены большой детский игровой городок, аллея для прогулок, площадки для пикников и 25 зон отдыха с концепцией пет-френдли, спортивные и воркаут-площадки, а также зоны выгула собак и круговая беговая дорожка.
Благоустроенный Двор сад - 2 гектара благоустроенной придомовой территории в единой концепции загородного участка от concrete jungle
Многоуровневый охраняемый подземный теплый паркинг.
Шаговая доступность к бизнес центрам.
Технорум - Оценить высокое качество строительства, эргономику планировок и потрясающие виды из окон,
вы можете посетив технорум. Пространство для демонстрации материалов и технологий строительства и инженерных систем. В техноруме размещаются демонстрационные стенды с материалами, используемыми при строительстве.
ЖК находится за городом в шаговой доступности от многих рекреационных точек притяжения: Гостинично-ресторанный комплекс - АВРОРА ПАРК. Гостинично-развлекательный комплекс - ROYAL PARK. Торгово-развлекательный центр -СЕДАНКА СИТИ. Санаторий - АМУРСКИЙ ЗАЛИВ. ДВО РАН БОТАНИЧЕСКИЙ САД-ИНСТИТУТ.
Застройщик успешно работает с 2014 года. Ее усилиями были вовремя возведены «Маяк Басаргина», «Академический», «Четыре горизонта», «РЕНЕССАНС», «Восточный Бриз Премьер», «Восточный Бриз»
Собственная управляющая компания «Ренессанс Комфорт».
О квартире
Общая площадь
69.59 м²
Жилая площадь
69.59 м²
Подъезд
1
Этаж
4
Окна выходят
На улицу
Ремонт
Стяжка-штукатурка
О доме
Год постройки
2025
Этажность
26
Количество подъездов
1
Материал постройки
Кирпично-монолитный
Материал перекрытий
Ж/б плиты
Отопление
Центральное
Парковка
Подземная
Расположение
Россия, Приморский край, Владивосток, улица Маковского, 55к4
Ипотечный калькулятор
Заполните 1 анкету — получите предложения от десятков банков на специальных условиях
Программа ипотеки
Стоимость жилья, ₽
Первый взнос, ₽
Срок кредита
от 5.75%
Ставка
от 87 560 ₽
Платеж в месяц
Расчёт носит информационный характер и не является публичной офертой
Похожие объекты

2-комн. квартира, 65,3 м², 4/6 эт.

2-комн. квартира, 68,3 м², 1/6 эт.
































2-комн. квартира, 69,6 м², 8/26 эт.






























2-комн. квартира, 69,6 м², 7/26 эт.
Консультант по новостройкам
13 918 000 ₽
200 000 ₽/м²




































