Продается 3-комн. квартира, 82 м²
Россия, Волгоград, район Семь Ветров, бульвар 30-летия Победы, 15А
82 м²
Общая площадь
52.5 м²
Жилая площадь
9 м²
Площадь кухни
2 из 10
Этаж
Описание
Продаётся просторная трёхкомнатная квартира на бульваре 30-летия Победы, 15А в районе Семь Ветров, Волгоград.
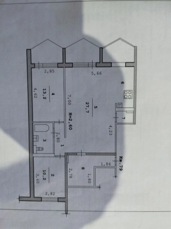
Общая площадь — 82 кв. м. Жилая площадь составляет 52,5 кв. м, а площадь кухни — 9 кв. м. Три изолированные комнаты (23,7 + 11,8 + 17 кв. м) обеспечивают комфортное размещение для всех членов семьи.
Квартира расположена на втором этаже десятиэтажного панельного дома, построенного в 2015 году. Высокие потолки (2,7 м) и евроремонт создают ощущение простора и уюта. Планировка и окна, выходящие на улицу, обеспечивают хорошее естественное освещение. Есть лоджия — отличное место для отдыха.
Расположение квартиры идеально для семей: близость к общественному транспорту, лёгкий доступ к основным магистралям и центру города. В радиусе 1000 метров — школы, детские сады, магазины и места отдыха. Это выгодное предложение по привлекательной цене.
Условия продажи: 1 собственник. Позвоните нам прямо сейчас, чтобы узнать больше и записаться на просмотр. Мы гарантируем безопасную сделку и юридическую поддержку нашим Клиентам. Поможем одобрить ипотеку с сниженной ставкой.
О квартире
Общая площадь
82 м²
Жилая площадь
52.5 м²
Площадь кухни
9 м²
Площадь комнат
23.7+11,8+17 м²
Высота потолков
2.7 м
Этаж
2
Расположение квартиры
не угловая
Окна выходят
На улицу
Раздельных санузлов
1
Ремонт
Евро
О доме
Год постройки
2015
Этажность
10
Материал постройки
Панельный
Материал перекрытий
Ж/б плиты
Отопление
Центральное
Расположение
Россия, Волгоград, район Семь Ветров, бульвар 30-летия Победы, 15А
Ипотечный калькулятор
Заполните 1 анкету — получите предложения от десятков банков на специальных условиях
Программа ипотеки
Стоимость жилья, ₽
Первый взнос, ₽
Срок кредита
от 5.75%
Ставка
от 56 306 ₽
Платеж в месяц
Расчёт носит информационный характер и не является публичной офертой
Предложите свою цену
8 950 000 ₽
109 146 ₽/м²






















































































