Продается Недвижимость Свободного Назначения, 3087 м²
Россия, Вологда, улица Прокатова, 8
3087 м²
Общая площадь
Отдельный
Вход в помещение
Свободный
Доступ в помещение
5 из 5
Этаж
Описание
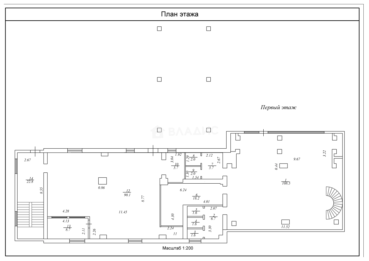
Здание состоит из двух корпусов, соединенных на 2 и 3 этажах.
Один корпус пятиэтажный, а другой - трехэтажный.
Здание находится на первой линии, возле дороги с высоким трафиком, что обеспечивает высокую видимость для вашего бизнеса. Рядом со зданием есть остановка общественного транспорта, что обеспечит дополнительный поток клиентов.
Это идеальное место для размещения ресторана, магазинов, фитнес-центра или другого коммерческого предприятия.
Объект имеет огромный потенциал для развития бизнеса и привлечения клиентов.
Была проведена реконструкция здания, документы оформлены.
В здании частично проведены ремонтные работы по дизайн-проекту:
- фасад облицован керамической плиткой,
- установлены пластиковые стеклопакеты,
- заменили электрическую проводку,
- заменили систему теплоснабжения,
- заменили систему водоснабжения,
- смонтирована система приточной вентиляции,
- на полу уложен керамогранит,
- часть помещений готовы к эксплуатации,
- в некоторых помещениях стены подготовлены под покраску.
Свяжитесь с нами для получения дополнительной информации и организации просмотра объекта.
Об объекте
Общая площадь
3087 м²
Этаж
5
Электрическая мощность
35 кВт
Раздельных санузлов
15
Ремонт
White box
Вход в помещение
Отдельный
Доступ в помещение
Свободный
Удобства
Вентиляция
Кухня
О здании
Тип коммерции
Отдельное здание
Год постройки
1968
Материал постройки
Кирпичный
Отопление
Центральное
Этажей в доме
5
Парковка
Наземная
Расположение
Россия, Вологда, улица Прокатова, 8
Ипотечный калькулятор
Заполните 1 анкету — получите предложения от десятков банков на специальных условиях
Программа ипотеки
Стоимость жилья, ₽
Первый взнос, ₽
Срок кредита
от 5.75%
Ставка
от 849 294 ₽
Платеж в месяц
Расчёт носит информационный характер и не является публичной офертой
Предложите свою цену
135 000 000 ₽
43 732 ₽/м²
























