Купить дом на улице Троицкая в Вологде
Россия, Вологда, Троицкая улица, 14
95.2 м²
Площадь дома
6 сот
Площадь участка
Сип-панели
Материал постройки
2
Этажей
Описание
О доме:
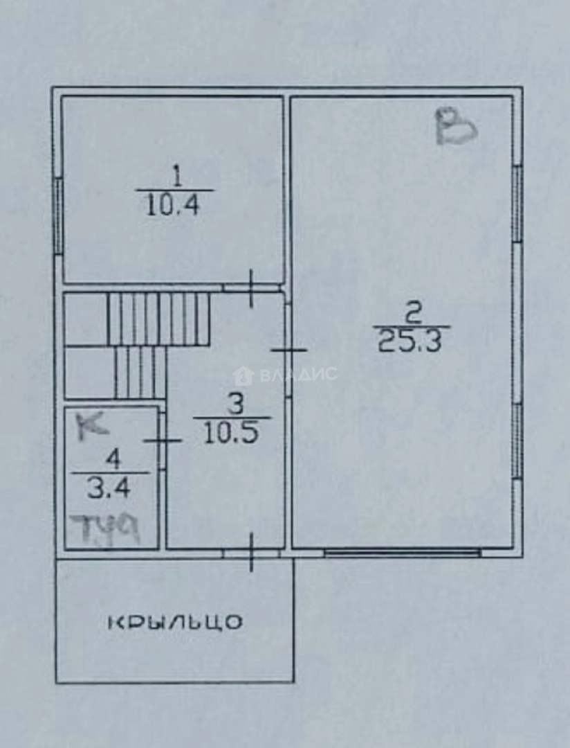
- Площадь дома 95,2 кв.м., 2 этажа, 4 комнаты, 2 санузла.
- просторная и фунциональная планировка, панорамное остекление.
- в доме центральное водоснабжение и канализация, газовое отпление.
- участок 6 соток, ровнй, сухой.
- престижный коттеджный поселок Покровская Слобода, рядом река, Ботанический сад, прекрасный вид на монастырь, живописная дорогая до поселка через Парк Мира.
Звоните за подробностями и записывайтесь на показ!
О доме
Год постройки
2024
Этажей в доме
2
Общая площадь
95.2 м²
Жилая площадь
71.4 м²
Площадь кухни
12 м²
Площадь комнат
10,4+25,3+10,4+25,3 м²
Материал постройки
Сип-панели
Материал перекрытий
Деревянные
Материал кровли
Металлочерепица
Раздельных санузлов
1
Об участке
Площадь участка
6 сот.
Статус участка
Индивидуальное жилищное строительство
Электричество
Есть
Газ
Есть
Водоснабжение
Есть
Канализация
Есть
Без благоустройства участка
Есть
Подъезд к участку
Щебенка
Расположение
Россия, Вологда, Троицкая улица, 14
Ипотечный калькулятор
Заполните 1 анкету — получите предложения от десятков банков на специальных условиях
Программа ипотеки
Стоимость жилья, ₽
Первый взнос, ₽
Срок кредита
от 5.75%
Ставка
от 56 306 ₽
Платеж в месяц
Расчёт носит информационный характер и не является публичной офертой
Предложите свою цену
8 950 000 ₽
94 013 ₽/м²









































