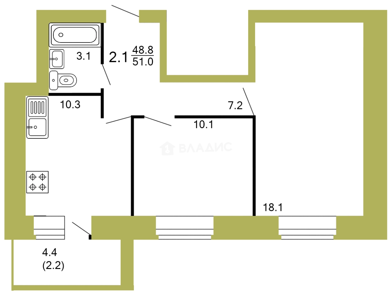
Продается 2-комн. квартира, 51.1 м²
Россия, Вологда, Осановский проезд, 31
51.1 м²
Общая площадь
28.2 м²
Жилая площадь
10.3 м²
Площадь кухни
10 из 10
Этаж
Описание
Рядом с домом расположено всё самое необходимое: супермаркеты, тренажёрные залы, салоны красоты, школа, новый детский сад с бассейном, остановки общественного транспорта, Осановская роща, стадион Локомотив, парк Победы.
Преимущество данного дома:
- Котлы в каждой квартире, что позволяют сэкономить на коммунальных платежах с установкой индивидуальных счётчиков учёта тепла, горизонтальной разводкой системы отопления в стяжке пола и никогда не переживать из-за отсутствия горячей воды.
- Тротуары из брусчатки. Стильное благоустройство, тротуары выполнены из брусчатки
- Двор без машин.
- Безопасность. Огороженная территория с видеонаблюдением 24/7.
- Бесшумные немецкие лифты OTIS (с нулевого этажа).
- Подъезды на уровне нулевого этажа. Молодые мамы с маленькими детьми, а также пожилые люди и велосипедисты оценят отсутствие ступеней и пандусов.
Территория дома благоустроена стильно и максимально безопасно. Для детей оборудована просторная детская площадка, рядом с которой нет проезжей части и её территория огорожена.
Не является публичной офертой.
О квартире
Общая площадь
51.1 м²
Жилая площадь
28.2 м²
Площадь кухни
10.3 м²
Площадь комнат
28,2 м²
Подъезд
8
Этаж
10
Расположение квартиры
угловая
Окна выходят
Во двор
Совмещенных санузлов
1
Ремонт
White box
О доме
Год постройки
2024
Этажность
10
Количество подъездов
8
Материал постройки
Кирпичный
Материал перекрытий
Ж/б плиты
Отопление
Индивидуальный котел
Пассажирских лифтов
1
Грузовых лифтов
1
Парковка
Наземная
Расположение
Россия, Вологда, Осановский проезд, 31
Ипотечный калькулятор
Заполните 1 анкету — получите предложения от десятков банков на специальных условиях
Программа ипотеки
Стоимость жилья, ₽
Первый взнос, ₽
Срок кредита
от 5.75%
Ставка
от 30 219 ₽
Платеж в месяц
Расчёт носит информационный характер и не является публичной офертой
Похожие объекты
Консультант по новостройкам
4 803 400 ₽
94 000 ₽/м²










































