Продается 3-комн. квартира, 141.7 м²
Россия, Вологда, Западная улица, 9
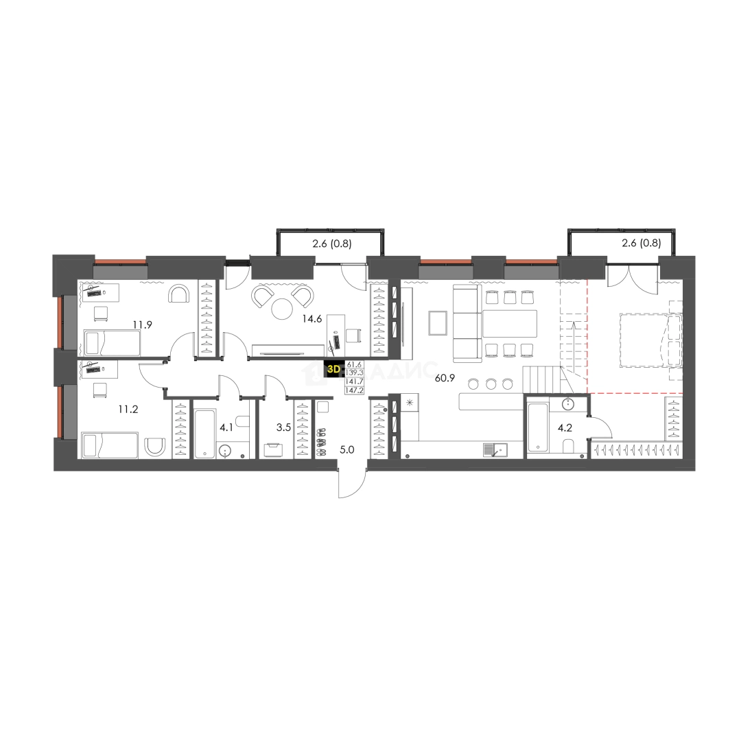
141.7 м²
Общая площадь
61.6 м²
Жилая площадь
60.9 м²
Площадь кухни
13 из 13
Этаж
Описание
Код объекта: 1104747.
Адрес: г.Вологда, ул.Западная, дом 9. В районе ул.Ленинградская.
Рядом располагаются детский сад №110 и №107, школа, центры досуга и дополнительного образования, кафе, рестораны, супермаркеты, остановки общественного транспорта, стадион «Витязь», бассейн, фитнес центр «Парнас».
Близко к центру города, панорамный вид на Соборную горку.
Планируемый срок ввода в эксплуатацию 1 квартал 2026 года.
Передача квартир ориентировочно март 2026 года.
По проектной декларации и ДДУ срок ввода до 30 декабря 2026 года.
До 31.12.2024 года с помощью наших проектировщиков Вы можете произвести свою перепланировку на этапе строительства до тех пор, пока не проведены работы по устройству перегородок в Вашей квартире.
Наружные и внутренние стены жилого дома возводятся из керамического кирпича - это натуральный и экологичный материал. Такой фасад не выцветает, не трескается и долго сохраняет первоначальный вид.
В квартирах выполняется отделка под чистовую. Стены оштукатурены, на полу цементно-песчаная стяжка. Отделка под чистовую экономит Ваше время и затраты на ремонт.
О застройщике «Черри Дом».
Опыт: успешные проекты в Вологде с 2008 года.
Надежность и безопасность: строительство по ФЗ-214. Сделки через эскроу-счета в самом надежном банке - ПАО Сбербанк. Денежные средства находятся на Вашем счете и переводятся Застройщику только после получения им разрешения на ввод дома в эксплуатацию.
Покупка: все виды ипотеки, наличные, материнский капитал, рассрочка от застройщика.
Просим Вас предварительно договориться о просмотре дома с менеджером и запланировать визит в офис - мы ценим Ваше время.
Офис: г. Вологда, ул. Республиканская 14, корпус 1
О квартире
Общая площадь
141.7 м²
Жилая площадь
61.6 м²
Площадь кухни
60.9 м²
Площадь комнат
11,2+11,9+14,6 м²
Высота потолков
3 м
Подъезд
1
Этаж
13
Расположение квартиры
угловая
Окна выходят
Во двор
Совмещенных санузлов
2
О доме
Год постройки
2026
Этажность
13
Количество подъездов
1
Материал постройки
Кирпичный
Материал перекрытий
Ж/б плиты
Отопление
Центральное
Грузовых лифтов
1
Парковка
Наземная
Расположение
Россия, Вологда, Западная улица, 9
Ипотечный калькулятор
Заполните 1 анкету — получите предложения от десятков банков на специальных условиях
Программа ипотеки
Стоимость жилья, ₽
Первый взнос, ₽
Срок кредита
от 5.75%
Ставка
от 127 502 ₽
Платеж в месяц
Расчёт носит информационный характер и не является публичной офертой
Консультант по новостройкам
20 267 110 ₽
143 029 ₽/м²

























