Продается 2-комн. квартира, 51.2 м²
Россия, Вологда, Старое шоссе, 3
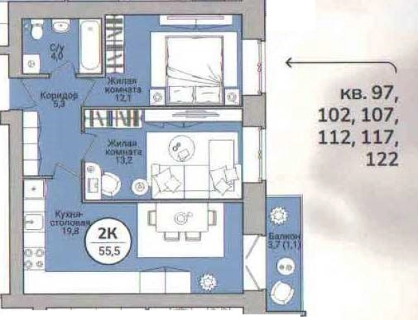
51.2 м²
Общая площадь
23 м²
Жилая площадь
12.6 м²
Площадь кухни
5 из 7
Этаж
Описание
Дом 7этажей с пристроенным ТЦ.
Материал стен керамический кирпич, облицовка силикатный кирпич.
Дом с лифтом. В каждом подъезде есть кладовки, где удобно хранить вещи.
Квартиры передаются покупателю со следующей отделкой: застеклённые балконы, металлическая дверь, стяжка-штукатурка, полотенцесушители в санузлах.
Отличная инфраструктура района. ЖК располагается в новом развивающемся районе, особенно для людей, работающих в Заречной части. города.
Рядом расположено всё необходимое для каждой семьи: супермаркеты, ТЦ, школы и детские сады, а так же медицинские. центры.
-Общеобразовательные школы № 9(Чернышевского 114) и № 11(Чернышевского 41).
-Детский сад (Граничная 7), детский сад "Ласточка", детский сад "Петушок"(Чернышевского 112В) и № 84(Тополевый переулок 19а)
В шаговой доступности остановка общественного транспорта, ТЦ, магазины - все для удобной комфортной жизни...
О квартире
Общая площадь
51.2 м²
Жилая площадь
23 м²
Площадь кухни
12.6 м²
Площадь комнат
23 м²
Подъезд
3
Этаж
5
Расположение квартиры
не угловая
Окна выходят
Во двор
Совмещенных санузлов
1
Ремонт
Чистовая
О доме
Год постройки
2025
Этажность
7
Количество подъездов
4
Материал постройки
Кирпичный
Материал перекрытий
Ж/б плиты
Отопление
Центральное
Грузовых лифтов
1
Парковка
Наземная
Расположение
Россия, Вологда, Старое шоссе, 3
Ипотечный калькулятор
Заполните 1 анкету — получите предложения от десятков банков на специальных условиях
Программа ипотеки
Стоимость жилья, ₽
Первый взнос, ₽
Срок кредита
от 5.75%
Ставка
от 35 230 ₽
Платеж в месяц
Расчёт носит информационный характер и не является публичной офертой
Похожие объекты
Консультант по новостройкам
5 600 000 ₽
109 375 ₽/м²










































