Продается 2-комн. квартира, 52.1 м²
Россия, Вологда, набережная 6-й Армии, 39
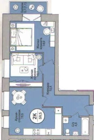
52.1 м²
Общая площадь
29.8 м²
Жилая площадь
11 м²
Площадь кухни
7 из 9
Этаж
Описание
Описания нет
О квартире
Общая площадь
52.1 м²
Жилая площадь
29.8 м²
Площадь кухни
11 м²
Площадь комнат
29,8 м²
Подъезд
1
Этаж
7
Расположение квартиры
угловая
Окна выходят
Во двор, На улицу
Совмещенных санузлов
1
Ремонт
Чистовая
О доме
Год постройки
2026
Этажность
9
Количество подъездов
2
Материал постройки
Кирпичный
Материал перекрытий
Ж/б плиты
Отопление
Своя котельная
Парковка
Наземная
Расположение
Россия, Вологда, набережная 6-й Армии, 39
Ипотечный калькулятор
Заполните 1 анкету — получите предложения от десятков банков на специальных условиях
Программа ипотеки
Стоимость жилья, ₽
Первый взнос, ₽
Срок кредита
от 5.75%
Ставка
от 35 727 ₽
Платеж в месяц
Расчёт носит информационный характер и не является публичной офертой
Похожие объекты
Консультант по новостройкам
5 678 900 ₽
109 000 ₽/м²
































