Продается 5-комн. квартира, 189 м²
Россия, Вологда, улица Челюскинцев, 23
189 м²
Общая площадь
118 м²
Жилая площадь
26.6 м²
Площадь кухни
5 из 7
Этаж
Описание
Дом построен в 2016 году из керамического кирпича.
Территория дома огорожена, установлена система видеонаблюдения.
В доме отопление – поквартирное от газовых котлов, с разводкой трубопроводов в конструкции пола помещений, приборы отопления - алюминиевые радиаторы с терморегуляторами. Что гарантирует Вам низкие коммунальные платежи.
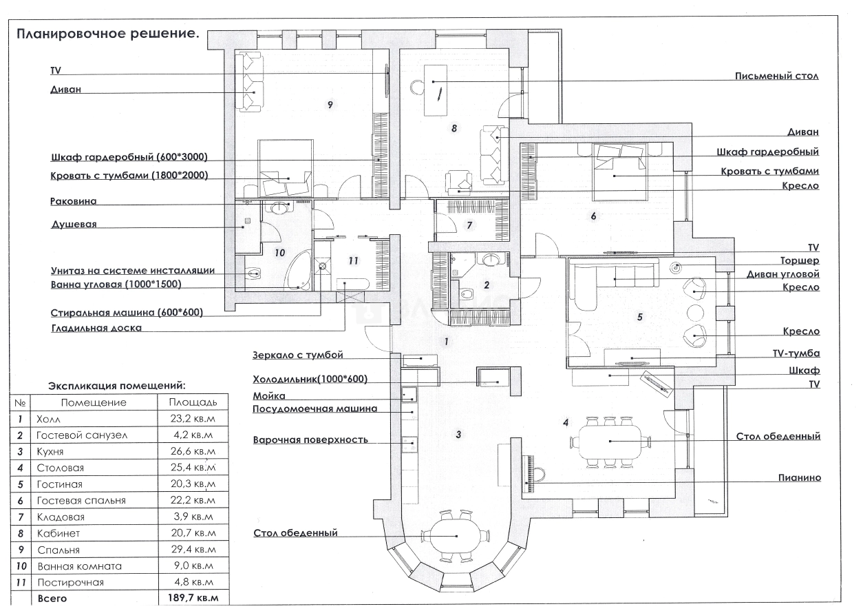
В квартире большая кухня общей площадью 26,6 кв м.
Большие просторные комнаты правильной прямоугольной формы.
В квартире имеется два сан узла: гостевой сан узел и своя мастер-спальня с постирочной, гардеробная.
Мебель и техника новым хозяевам по договоренности.
Квартира продается только совместно с гаражом 24 кв.м.
Квартира без долгов и без обременений.
О квартире
Общая площадь
189 м²
Жилая площадь
118 м²
Площадь кухни
26.6 м²
Площадь комнат
29,4+22,2+20,7+20,3+ 25,4 м²
Подъезд
4
Этаж
5
Расположение квартиры
угловая
Окна выходят
На улицу, Во двор
Совмещенных санузлов
2
Ремонт
Дизайнерский
О доме
Год постройки
2016
Этажность
7
Количество подъездов
4
Материал постройки
Кирпичный
Материал перекрытий
Ж/б плиты
Отопление
Индивидуальный котел
Пассажирских лифтов
1
Парковка
Наземная
Огороженная территория
Да
Расположение
Россия, Вологда, улица Челюскинцев, 23
Ипотечный калькулятор
Заполните 1 анкету — получите предложения от десятков банков на специальных условиях
Программа ипотеки
Стоимость жилья, ₽
Первый взнос, ₽
Срок кредита
от 5.75%
Ставка
от 209 178 ₽
Платеж в месяц
Расчёт носит информационный характер и не является публичной офертой
Предложите свою цену
33 250 000 ₽
175 926 ₽/м²

















































