Продается 3-комн. квартира, 78.1 м²
Россия, Вологда, Кирпичная улица, 21
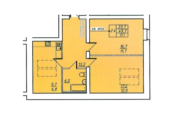
78.1 м²
Общая площадь
6 из 16
Этаж
Описание
Адрес: г. Вологда, ул. Кирпичная
Срок сдачи: 2 квартал 2026 года
Сейчас есть возможность выполнить перепланировку на этапе строительства до тех пор, пока не проведены работы по устройству перегородок в квартире.
Преимущества:
• Развитая инфраструктура: рядом детские сады, школы, кафе, рестораны, супермаркеты, фитнес-центры.
• Закрытая территория
• Современные технологии: видеонаблюдение, IP-домофоны, качественная отделка.
• Удобные планировки: просторные кухни-гостиные, мастер-спальни, возможность перепланировки.
• Комфорт: панорамное остекление, энергосберегающие окна, 1 этаж теплые полы.
• Парковка: индивидуальные гаражи, наземная парковка.
• На 2 этаже благоустроенная территория для времяпрепровождения вас и ваших детей.
О застройщике «Черри Дом».
Опыт: успешные проекты в Вологде с 2008 года.
Надежность и безопасность: строительство по ФЗ-214. Сделки через эскроу-счета в ПАО Сбербанк. Денежные средства находятся на Вашем счете и переводятся Застройщику только после получения им разрешения на ввод дома в эксплуатацию.
Покупка: все виды ипотеки, наличные, материнский капитал, рассрочка от застройщика.
Просим Вас предварительно договориться о просмотре дома с менеджером и запланировать визит в офис - мы ценим Ваше время.
Офис: г. Вологда, ул. Республиканская 14, корпус 1
О квартире
Общая площадь
78.1 м²
Подъезд
1
Этаж
6
Окна выходят
На улицу
О доме
Год постройки
2026
Этажность
16
Количество подъездов
1
Материал постройки
Кирпично-монолитный
Материал перекрытий
Ж/б плиты
Отопление
Центральное
Пассажирских лифтов
1
Грузовых лифтов
1
Парковка
Наземная
Расположение
Россия, Вологда, Кирпичная улица, 21
Ипотечный калькулятор
Заполните 1 анкету — получите предложения от десятков банков на специальных условиях
Программа ипотеки
Стоимость жилья, ₽
Первый взнос, ₽
Срок кредита
от 5.75%
Ставка
от 66 291 ₽
Платеж в месяц
Расчёт носит информационный характер и не является публичной офертой
Похожие объекты
Консультант по новостройкам
10 537 300 ₽
134 921 ₽/м²































