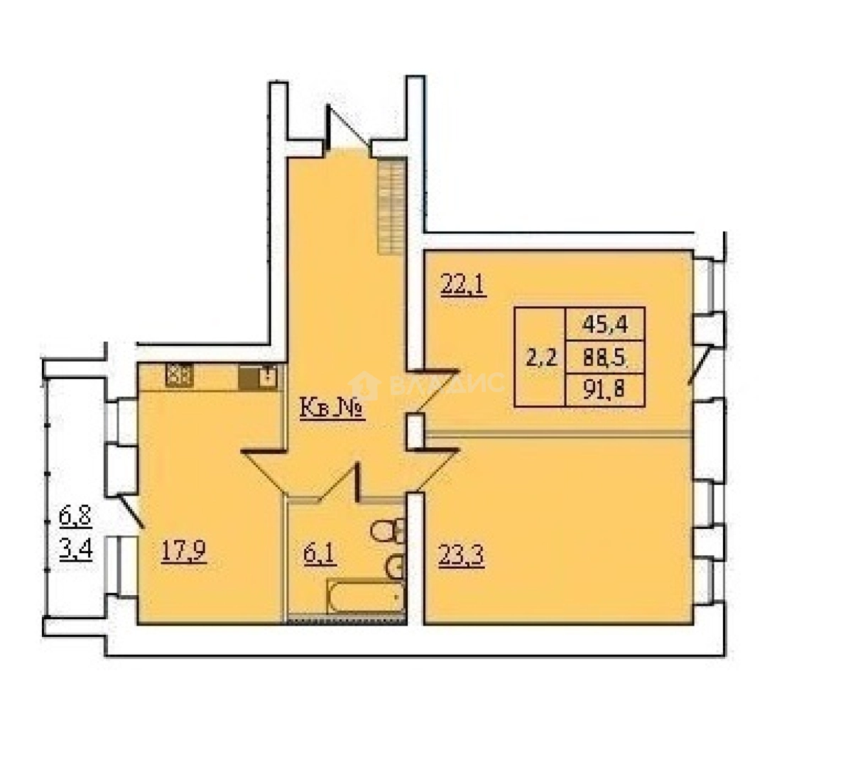
Продается 2-комн. квартира, 91.8 м²
Россия, Вологда, Комсомольская улица, 35А
91.8 м²
Общая площадь
45.7 м²
Жилая площадь
17.9 м²
Площадь кухни
2 из 4
Этаж
Описание
Дом кирпичный (керамический кирпич фирмы Recke), всего 43 квартиры, придомовая территория, видеонаблюдение. Толщина внешних несущих стен 65 см (кладка в 2,5 кирпича).
Просторная, светлая квартира свободной планировки (за Вами остаётся выбор: классический или Евро-формат!):
- кухня - гостиная 17,9 кв.м.
- комнаты правильной формы
- функциональная прихожая
- совмещенный санузел
- лоджия застеклена!
В квартире установлены:
- качественные входные металлические двери
- металлические радиаторы
- пластиковые окна, профиль 70 мм (графская платина ламинация) + энергосберегающий стеклопакет
- счётчики учёта тепла и воды
- витражное остекление лоджии (INICIAL Systems алюминиевый профиль)
- стены черновая штукатурка, полусухая цементно-песчаная стяжка на полу.
О квартире
Общая площадь
91.8 м²
Жилая площадь
45.7 м²
Площадь кухни
17.9 м²
Площадь комнат
23,4+22,3 м²
Подъезд
2
Этаж
2
Расположение квартиры
угловая
Окна выходят
На улицу, Во двор
Совмещенных санузлов
1
Ремонт
Без отделки
О доме
Год постройки
2022
Этажность
4
Количество подъездов
3
Материал постройки
Кирпичный
Материал перекрытий
Ж/б плиты
Отопление
Центральное
Парковка
Наземная
Расположение
Россия, Вологда, Комсомольская улица, 35А
Ипотечный калькулятор
Заполните 1 анкету — получите предложения от десятков банков на специальных условиях
Программа ипотеки
Стоимость жилья, ₽
Первый взнос, ₽
Срок кредита
от 5.75%
Ставка
от 71 035 ₽
Платеж в месяц
Расчёт носит информационный характер и не является публичной офертой
Похожие объекты
Предложите свою цену
11 291 400 ₽
123 000 ₽/м²





































































































