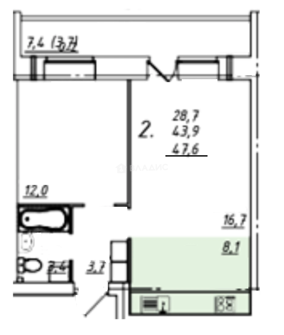
Продается 1-комн. квартира, 47.6 м²
Россия, Вологда, улица Чернышевского, 110Ак1
47.6 м²
Общая площадь
12.1 м²
Жилая площадь
25.2 м²
Площадь кухни
3 из 5
Этаж
Описание
Площадь квартиры составляет 47.6 кв. м, из которых 12.1 кв. м занимает уютная жилая комната, а просторная кухня площадью 25.2 кв. м идеально подойдет как для приготовления пищи, так и для семейных встреч. Окна выходят на улицу, что создаст приятный световой фон в течение всего дня.
Инфраструктура района развита: рядом находятся магазины, кафе и удобная транспортная развязка, что обеспечит быструю доступность до центра города и ключевых объектов. Купить эту квартиру значит быть на шаг ближе к своему идеальному дому.
Не упустите свой шанс! Запишитесь на просмотр и оцените все преимущества уже сегодня. Мы гарантируем безопасную сделку и юридическую поддержку нашим Клиентам. Поможем одобрить ипотеку на интересных условиях.
О квартире
Общая площадь
47.6 м²
Жилая площадь
12.1 м²
Площадь кухни
25.2 м²
Площадь комнат
12,1 м²
Подъезд
2
Этаж
3
Расположение квартиры
не угловая
Окна выходят
На улицу, Во двор
Совмещенных санузлов
1
Ремонт
Без отделки
О доме
Год постройки
2024
Этажность
5
Количество подъездов
2
Материал постройки
Кирпичный
Материал перекрытий
Ж/б плиты
Отопление
Центральное
Парковка
Наземная
Расположение
Россия, Вологда, улица Чернышевского, 110Ак1
Ипотечный калькулятор
Заполните 1 анкету — получите предложения от десятков банков на специальных условиях
Программа ипотеки
Стоимость жилья, ₽
Первый взнос, ₽
Срок кредита
от 5.75%
Ставка
от 25 039 ₽
Платеж в месяц
Расчёт носит информационный характер и не является публичной офертой
Похожие объекты
Предложите свою цену
3 980 000 ₽
83 613 ₽/м²




























































