Продается 3-комн. квартира, 113.2 м²
Россия, Вологда, улица Карла Маркса, 19
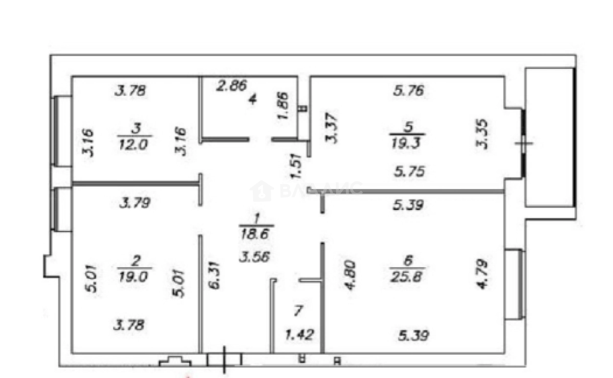
113.2 м²
Общая площадь
50.5 м²
Жилая площадь
25.9 м²
Площадь кухни
5 из 5
Этаж
Описание
Расположен между улицами Карла Маркса и Заречная.
Большая кухня-гостиная..
Лоджия с витражным остеклением.
Материал стен керамический кирпич.
Отделка входных групп и коридоров будет выполнена по дизайнерскому проекту.
Закрытая территория, парковка и детские площадки.
Вся инфраструктура в шаговой доступности.Магазины,школы,поликлинники,кафе и рестораны.ПАРК ВЕТЕРАНОВ в 100 метрах от дома.Это отличный вариант для большой и дружной семьи!
О квартире
Общая площадь
113.2 м²
Жилая площадь
50.5 м²
Площадь кухни
25.9 м²
Площадь комнат
20.5+17.5+12.5 м²
Высота потолков
2.7 м
Подъезд
1
Этаж
5
Расположение квартиры
не угловая
Окна выходят
На улицу
Совмещенных санузлов
1
О доме
Год постройки
2023
Этажность
5
Материал постройки
Кирпичный
Материал перекрытий
Ж/б плиты
Отопление
Своя котельная
Парковка
Наземная
Огороженная территория
Да
Расположение
Россия, Вологда, улица Карла Маркса, 19
Ипотечный калькулятор
Заполните 1 анкету — получите предложения от десятков банков на специальных условиях
Программа ипотеки
Стоимость жилья, ₽
Первый взнос, ₽
Срок кредита
от 5.75%
Ставка
от 103 262 ₽
Платеж в месяц
Расчёт носит информационный характер и не является публичной офертой
Предложите свою цену
16 414 000 ₽
145 000 ₽/м²














































































