Продается 1-комн. квартира, 33 м²
Россия, Вологда, Старое шоссе, 3Бк2
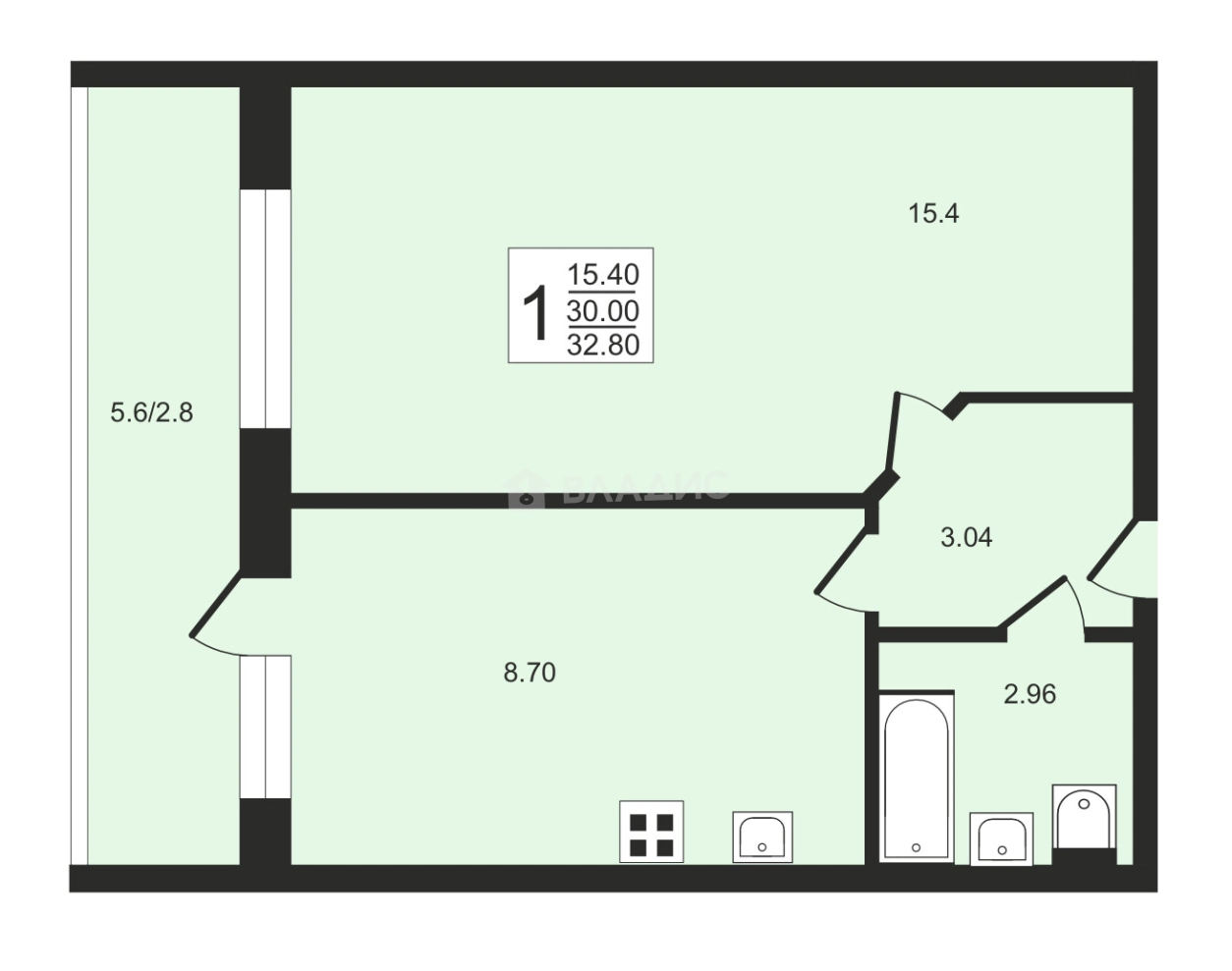
33 м²
Общая площадь
15.4 м²
Жилая площадь
8.7 м²
Площадь кухни
5 из 9
Этаж
Описание
Находиться на среднем этаже кирпичного дома 2019 года постройки.
В квартире новый аккуратный косметический ремонт, в светлых тонах.
В прихожей на полу плитка, натяжной потолок.
Кухня с выходом на большую лоджию с окнами во двор. На полу плитка, современный кухонный гарнитур, натяжной потолок.
Уютная жилая комната со светлым ламинатом на полу и светлыми обоями.
Квартира очень чистая.
Дом расположен в тихом спокойном и уютном месте в дали от шумных дорог, но в то же время рядом с развитой инфраструктурой: новый детский садик "Ласточка", СОШ № 9, магазины, ТЦ, остановка, парк Мира, пляж через дорогу. Недалеко до Спасо-Прилуцкого Димитриева монастыря.
О квартире
Общая площадь
33 м²
Жилая площадь
15.4 м²
Площадь кухни
8.7 м²
Площадь комнат
15,4 м²
Подъезд
2
Этаж
5
Расположение квартиры
не угловая
Окна выходят
Во двор
Совмещенных санузлов
1
Ремонт
Косметический
О доме
Год постройки
2019
Этажность
9
Количество подъездов
4
Материал постройки
Кирпичный
Материал перекрытий
Ж/б плиты
Отопление
Центральное
Пассажирских лифтов
1
Парковка
Наземная
Расположение
Россия, Вологда, Старое шоссе, 3Бк2
Ипотечный калькулятор
Заполните 1 анкету — получите предложения от десятков банков на специальных условиях
Программа ипотеки
Стоимость жилья, ₽
Первый взнос, ₽
Срок кредита
от 5.75%
Ставка
от 23 907 ₽
Платеж в месяц
Расчёт носит информационный характер и не является публичной офертой
Предложите свою цену
3 800 000 ₽
115 152 ₽/м²















