Продается 2-комн. квартира, 55.4 м²
Россия, Вологда, улица Возрождения, 86А
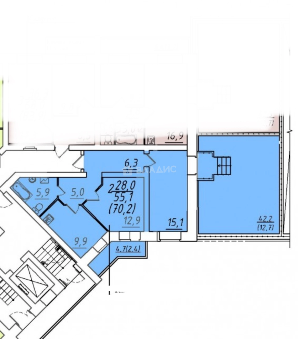
55.4 м²
Общая площадь
28 м²
Жилая площадь
9.9 м²
Площадь кухни
12 из 12
Этаж
Описание
55,4 м² + 37 м² терраса | 12 этаж | черновая отделка
Продаю двухкомнатную квартиру в доме с индивидуальной котельной. 12-й этаж, панорамные окна, высокий потолок и прямой выход из квартиры на открытую террасу площадью 37 м². Это не общий балкон, а личное пространство на крыше города — с возможностью обустроить там зону отдыха, поставить кресла, цветы, уличное освещение. Красивый вид и тишина, особенно по вечерам — сторона западная, закаты видно отлично.
Сейчас квартира в черновой отделке, но это и плюс — вы не переплачиваете за чужой ремонт, а можете реализовать всё под себя.
На фотографиях — вариант разработанного дизайн-проекта с расстановкой мебели, зонированием и стилем. Планировка удобная:
– две изолированные комнаты,
– совмещённый санузел,
– светлая кухня,
– панорамное остекление,
– качественные стеклопакеты,
– широкие стены и правильная геометрия пространства.
Дом с ТСЖ, лифт, хорошие соседи, во дворе расширенная парковка, под окнами — сквер. Район обжитой, всё рядом: детсады, школа, остановка, магазины, аптеки, даже храм строится рядом.
Дополнительно:
Через стену — в продаже ещё одна квартира (трёшка) с террасой 51 м², дизайнерским ремонтом и полностью готовой для жизни. При желании можно купить сразу обе — получится большое, продуманное пространство с двумя выходами, двумя террасами (в сумме 88 м²) и отличным потенциалом. Такой вариант подойдёт для семьи с родителями, для объединённого жилья, домашнего офиса, студии и так далее.
Важно
– Квартира от собственника,
– Один взрослый владелец,
– Документы готовы к сделке,
– Без долгов и обременений,
– Показываем в удобное для вас время, возможен онлайн-тур.
Дополнительные фотографии квартиры в настоящий момент по запросу.
Если есть вопросы или интересует сразу две квартиры — звоните, расскажу все подробности.
О квартире
Общая площадь
55.4 м²
Жилая площадь
28 м²
Площадь кухни
9.9 м²
Площадь комнат
12,9+15,1 м²
Высота потолков
2.7 м
Подъезд
4
Этаж
12
Расположение квартиры
угловая
Окна выходят
На улицу
Совмещенных санузлов
1
О доме
Год постройки
2020
Этажность
12
Количество подъездов
7
Материал постройки
Кирпичный
Материал перекрытий
Ж/б плиты
Отопление
Своя котельная
Пассажирских лифтов
1
Грузовых лифтов
1
Парковка
Наземная
Расположение
Россия, Вологда, улица Возрождения, 86А
Ипотечный калькулятор
Заполните 1 анкету — получите предложения от десятков банков на специальных условиях
Программа ипотеки
Стоимость жилья, ₽
Первый взнос, ₽
Срок кредита
от 5.75%
Ставка
от 53 600 ₽
Платеж в месяц
Расчёт носит информационный характер и не является публичной офертой
Предложите свою цену
8 520 000 ₽
153 791 ₽/м²
















































































