Продается 3-комн. квартира, 90.5 м²
Россия, Вологда, Комсомольская улица, 35А
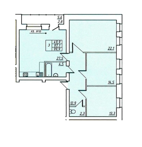
90.5 м²
Общая площадь
42.6 м²
Жилая площадь
14.2 м²
Площадь кухни
3 из 4
Этаж
Описание
Вся инфраструктура в шаговой доступности.
Дом кирпичный (керамический кирпич фирмы Recke), всего 43 квартиры, закрытая придомовая территория въезд через автоматические ворота, видеонаблюдение.
За Вами остаётся выбор планировки (классической или Евро-формата с кухней гостиной!
В квартирах установлены:
- качественные входные металлические двери
- металлические радиаторы
- пластиковые окна, профиль 70 мм( графская платина ламинация) + энергосберегающий стеклопакет
- счётчики учёта тепла и воды
- витражное остекление лоджии (INICIAL Systems алюминиевый профиль)
- стены черновая штукатурка, полусухая цементно-песчаная стяжка на полу.
• Толщина внешних несущих стен из кирпича 65 см (кладка в 2,5 кирпича)
• Высота потолков варьируется от 2700-3000/ на мансарде самое низкое место 1400.
О квартире
Общая площадь
90.5 м²
Жилая площадь
42.6 м²
Площадь кухни
14.2 м²
Площадь комнат
14.7+12.7+15.2 м²
Подъезд
3
Этаж
3
Расположение квартиры
угловая
Окна выходят
Во двор
Раздельных санузлов
1
Ремонт
Без отделки
О доме
Год постройки
2022
Этажность
4
Количество подъездов
3
Материал постройки
Кирпичный
Материал перекрытий
Ж/б плиты
Отопление
Центральное
Парковка
Наземная
Расположение
Россия, Вологда, Комсомольская улица, 35А
Ипотечный калькулятор
Заполните 1 анкету — получите предложения от десятков банков на специальных условиях
Программа ипотеки
Стоимость жилья, ₽
Первый взнос, ₽
Срок кредита
от 5.75%
Ставка
от 75 154 ₽
Платеж в месяц
Расчёт носит информационный характер и не является публичной офертой
Похожие объекты
Консультант по новостройкам
11 946 000 ₽
132 000 ₽/м²





































