Продается 3-комн. квартира, 58.5 м²
Россия, Вологда, 1-й микрорайон ГПЗ-23, 6к1
58.5 м²
Общая площадь
40.4 м²
Жилая площадь
5.9 м²
Площадь кухни
3 из 5
Этаж
Описание
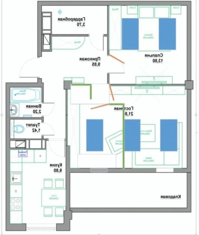
Квартира находится на третьем этаже пятиэтажного кирпичного дома.
Общая площадь составляет 58,5 кв. м, из которых 40,4 кв. м — жилая площадь. Комнаты имеют удобную планировку: 17,9 кв. м, 13,0 кв. м и 9,5 кв. м. Есть застекленный балкон.
В квартире сделан косметический ремонт, что позволит новым владельцам сразу заселиться и начать обустраивать своё гнёздышко по своему вкусу.
После продажи остается новым хозяевам: кухонный гарнитур, в гостинной стенка и шкафы.
Развитая инфраструктура района делает эту квартиру ещё более привлекательной. Рядом есть всё необходимое для комфортной жизни: школы, детские сады, магазины и аптеки.
Поможем одобрить ипотеку с сниженной ставкой.
Не откладывайте своё счастье на потом — запишитесь на просмотр уже сегодня!
О квартире
Общая площадь
58.5 м²
Жилая площадь
40.4 м²
Площадь кухни
5.9 м²
Площадь комнат
17,9+13,0+9,5 м²
Подъезд
8
Этаж
3
Расположение квартиры
не угловая
Окна выходят
На улицу
Раздельных санузлов
1
Ремонт
Косметический
О доме
Год постройки
1974
Этажность
5
Количество подъездов
8
Материал постройки
Кирпичный
Материал перекрытий
Ж/б плиты
Отопление
Центральное
Расположение
Россия, Вологда, 1-й микрорайон ГПЗ-23, 6к1
Ипотечный калькулятор
Заполните 1 анкету — получите предложения от десятков банков на специальных условиях
Программа ипотеки
Стоимость жилья, ₽
Первый взнос, ₽
Срок кредита
от 5.75%
Ставка
от 32 368 ₽
Платеж в месяц
Расчёт носит информационный характер и не является публичной офертой
Похожие объекты
Предложите свою цену
5 145 000 ₽
87 949 ₽/м²



























































































