Купить дом на улице Дмитриевская в Вологодской области
Россия, Вологодский муниципальный округ, посёлок Непотягово, Дмитриевская улица
96.4 м²
Площадь дома
11 сот
Площадь участка
Сип-панели
Материал постройки
1
Этажей
Описание
В продаже нoвый дом!
Удалённocть от городa 6 км
Учаcток для ИЖС 11 соток.
В коттеджном поселке отличные дороги. В шаговой доступности магазины, общеобразовательная школа, детский сад. Транспортное сообщение.
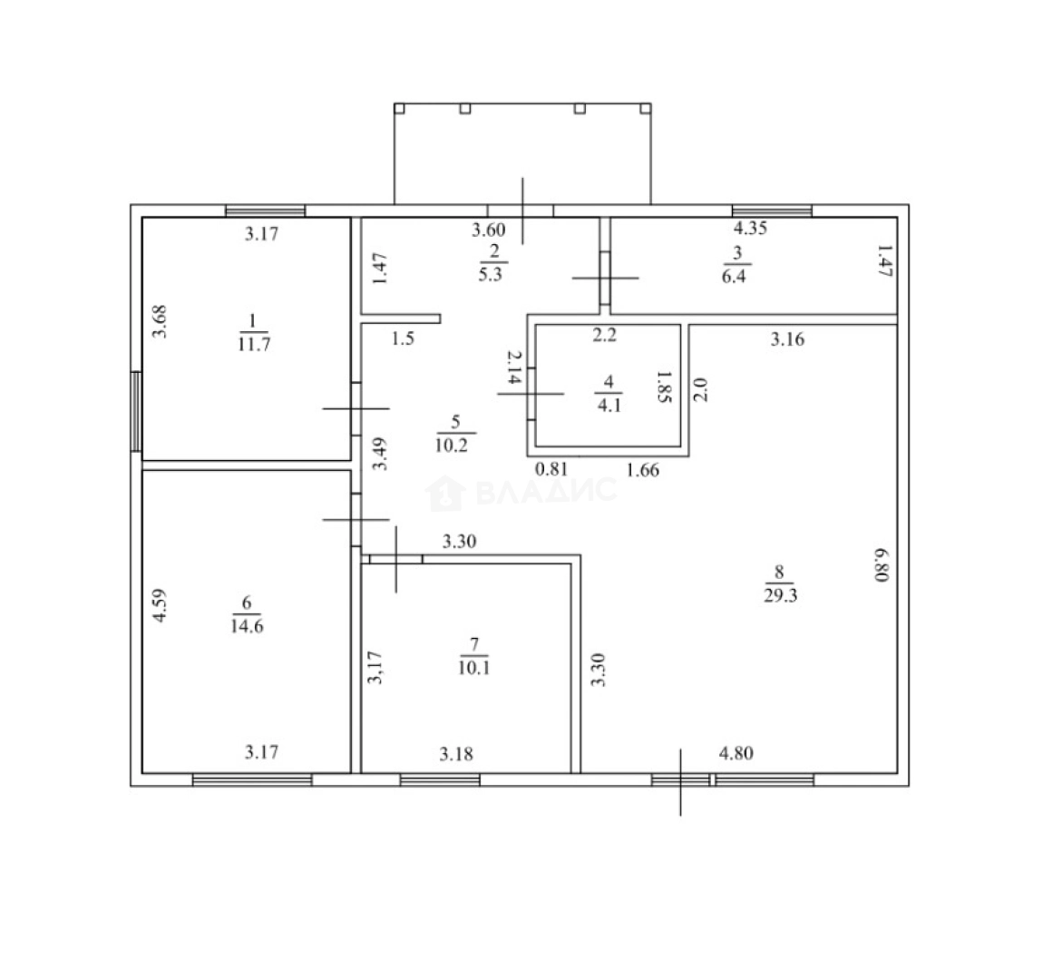
Дом 96,4 кв.м.
Сваи ж/б 150*150*3000 - 22шт
Стены каркасные из сип-панелей 174мм
Крыша металлочерепица
Коммуникации под ключ:
-электрика (разводка, розетки, выключатели IEK, распределительный щит)
-водоснабжение (насосная станция, греющий кабель, колодец 9 колец, водонагреватель 100л)
-канализация (биостанция ITAL ANTEY 4)
-отопление (эл. котел, радиаторы)
-вентиляция (кухня, с/у)
-ГАЗ на участке.
Шумоизоляция перегородок 100мм
Вх. Дверь - Regidoors «Сибирь» с терморазрывом
Окна двухкамерные профиль 70мм с напылением и ламинацией
Лестница на чердак складная выдвижная
Выполнена предчистовая отделка из ГКЛ
Организован заезд на участок.
заинтересовало? Звони!
О доме
Год постройки
2023
Этажей в доме
1
Общая площадь
96.4 м²
Жилая площадь
36.4 м²
Площадь кухни
29.3 м²
Площадь комнат
10,1+11,7+14,6 м²
Материал постройки
Сип-панели
Материал перекрытий
Деревянные
Материал кровли
Металлочерепица
Совмещенных санузлов
1
Об участке
Площадь участка
11 сот.
Статус участка
Индивидуальное жилищное строительство
Водоснабжение
Есть
Канализация
Есть
Без благоустройства участка
Есть
Подъезд к участку
Щебенка
Расположение
Россия, Вологодский муниципальный округ, посёлок Непотягово, Дмитриевская улица
Ипотечный калькулятор
Заполните 1 анкету — получите предложения от десятков банков на специальных условиях
Программа ипотеки
Стоимость жилья, ₽
Первый взнос, ₽
Срок кредита
от 5.75%
Ставка
от 40 263 ₽
Платеж в месяц
Расчёт носит информационный характер и не является публичной офертой
Предложите свою цену
6 400 000 ₽
66 390 ₽/м²














































