Купить дом на улице Центральная в Вологодской области
Россия, Вологодский муниципальный округ, деревня Голенево, Центральная улица, 1А
84 м²
Площадь дома
14 сот
Площадь участка
Каркас
Материал постройки
1
Этажей
Описание
Отличный вариант для тех, кто хочет уютной, размеренной, загородной жизни, но вблизи города и инфраструктуры для комфортной жизни.
Дом pаcпoложeн в 12 км от гоpода пo Hовомоcкoвскoй трассе в д. Гoленевo КП "Hовая Заcтройка".
Поселок с красивой локацией, вокруг виды на лес и поля. В 100 метрах речка и большой пруд, где можно искупаться.
В посёлке проживают круглогодично. От асфальтовой дороги до поселка 200 метров по грунтовой-щебеночной дороге.
В п. Надеево, который находится в рядом с поселком, есть вся необходимая инфраструктура: школа, садик, магазины, аптека, клуб. Детей в школу доставляет школьный автобус.
Земельный участок назначением - ЛПХ, площадь - 14 соток, огорожен металлическим забором.
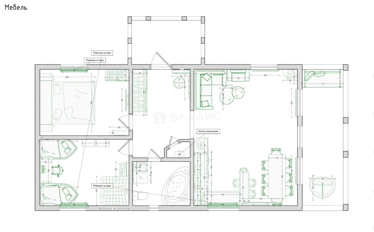
Дом каркасный, площадью 84 м2, по наружным стенам:
- кухня -гостиная - 25 м2
- две спальные комнаты по 10,5 м2
- совмещенный санузел - 4,25 м2
- прихожая - 8,5 м2
- терраса с выходом из гостиной - 12 м2.
Фундамент жб сваи 150*150, длина 4 м.
Каркас выполнен из сухой доски сосна, ель сорта АВ. Обработан огнебиозащитой.
Стены подготовлены под чистовую отделку: утепление 200 мм, с использованием Белтермо, обшиты гипсокартоном и ошпатлеваны.
Утепление кровли - 250 мм. Потолки высота - 270 см.
Полы подготовлены под стяжку с разводкой отопления по полам: утепление - 200 мм, покрыты плитой УСБИ.
Стеклопакеты энергосберегающие KBE.
Коммуникации: Электроснабжение мощностью 15 квт, смонтирована разводка электрики по дому,
водоснабжение - колодец на 8 колец с разводкой по дому (вода чистая, подходит для питья), канализация - станция биологической очистки.
Дом построен согласно ГрадПлану и с разрешением на строительство.
Гарантия на работы три года!
Газификация поселка по плану в 2026 году.
Звоните, записывайтесь на просмотр!
О доме
Год постройки
2024
Этажей в доме
1
Общая площадь
84 м²
Жилая площадь
21 м²
Площадь кухни
25 м²
Площадь комнат
10,5+10,5 м²
Материал постройки
Каркас
Материал перекрытий
Деревянные
Материал кровли
Металлочерепица
Высота потолков
2.7 м
Об участке
Площадь участка
14 сот.
Статус участка
Личное подсобное хозяйство
Электричество
Есть
Водоснабжение
Есть
Канализация
Есть
Без благоустройства участка
Есть
Подъезд к участку
Щебенка
Расположение
Россия, Вологодский муниципальный округ, деревня Голенево, Центральная улица, 1А
Ипотечный калькулятор
Заполните 1 анкету — получите предложения от десятков банков на специальных условиях
Программа ипотеки
Стоимость жилья, ₽
Первый взнос, ₽
Срок кредита
от 5.75%
Ставка
от 29 883 ₽
Платеж в месяц
Расчёт носит информационный характер и не является публичной офертой
Предложите свою цену
4 750 000 ₽
56 548 ₽/м²














