Купить дом в Вологодской области
Россия, Вологодский муниципальный округ, деревня Нагорье, 1А
96 м²
Площадь дома
12.5 сот
Площадь участка
Газобетонный блок
Материал постройки
1
Этажей
Описание
Продаётся светлый и просторный дом площадью 96 кв. м. на участке 12,5 соток. Дом построен в 2022 году из газобетонных блоков, кровля — металлочерепица. Подъезд к участку асфальтированный, до дома 200 м грунтовка.
Расположение дома идеально для семей с детьми: тишина и спокойствие деревни, свежий воздух, возможность вырастить сад или огород. При этом до города всего 12 — удобно для работы и развлечений.
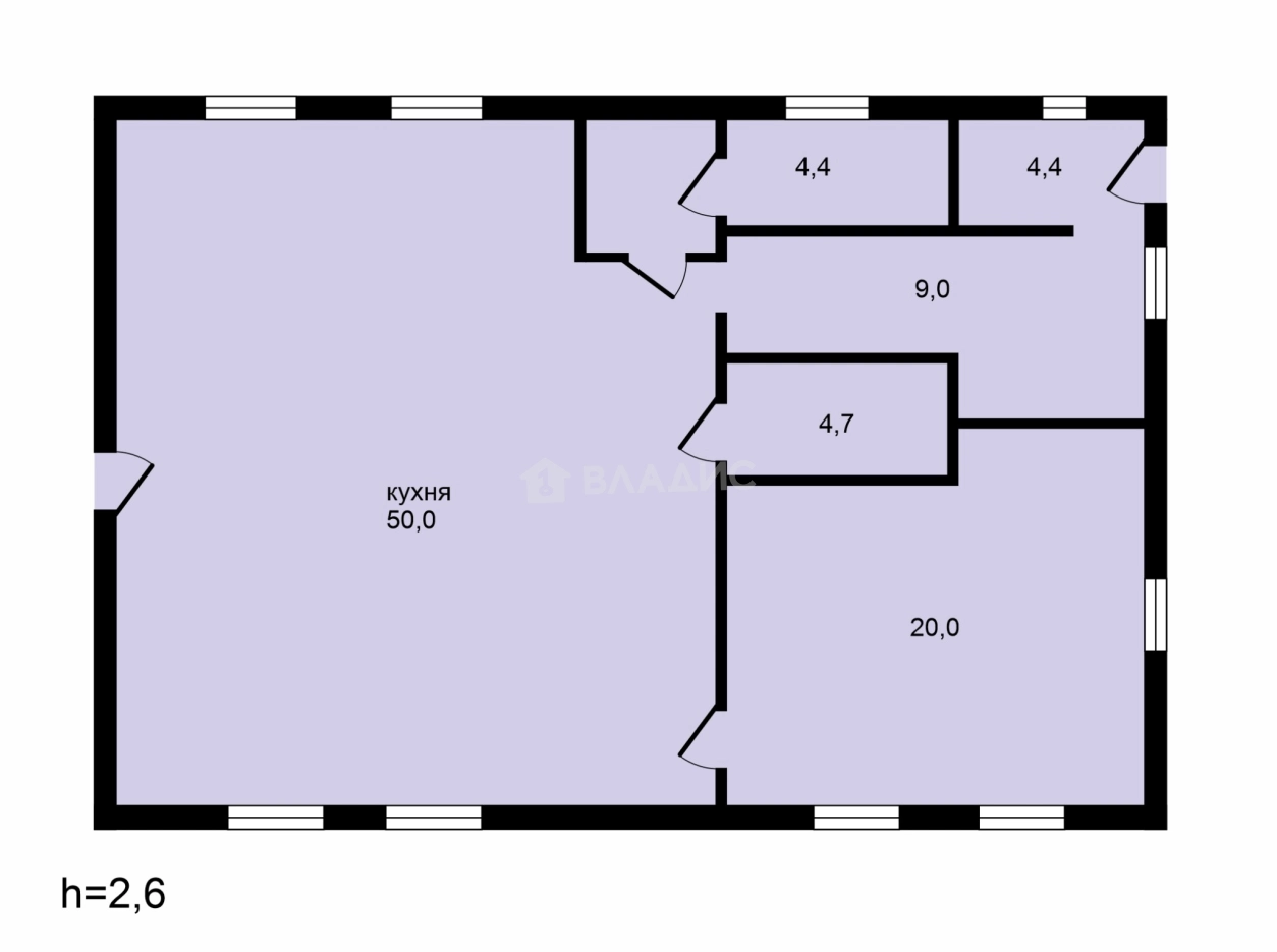
Планировка дома продумана до мелочей: две комнаты позволят каждому члену семьи найти своё пространство. Большая кухня-гостинная 50 кв м с печкой.
В 4 км от дома расположен горнолыжный комплекс Фристайл, зимой сможете заниматься горными лыжами и с детьми кататься на ватрушках.
Мы гарантируем безопасную сделку и юридическую поддержку нашим Клиентам. Поможем одобрить ипотеку с сниженной ставкой.
О доме
Год постройки
2022
Этажей в доме
1
Общая площадь
96 м²
Жилая площадь
29 м²
Площадь кухни
50 м²
Площадь комнат
20+9 м²
Материал постройки
Газобетонный блок
Материал перекрытий
Деревянные
Материал кровли
Металлочерепица
Высота потолков
2.6 м
Об участке
Площадь участка
12.5 сот.
Статус участка
Садоводство
Электричество
Есть
Водоснабжение
Есть
Канализация
Есть
Без благоустройства участка
Есть
Подъезд к участку
Грунтовка
Расположение
Россия, Вологодский муниципальный округ, деревня Нагорье, 1А
Ипотечный калькулятор
Заполните 1 анкету — получите предложения от десятков банков на специальных условиях
Программа ипотеки
Стоимость жилья, ₽
Первый взнос, ₽
Срок кредита
от 5.75%
Ставка
от 49 700 ₽
Платеж в месяц
Расчёт носит информационный характер и не является публичной офертой
Предложите свою цену
7 900 000 ₽
82 292 ₽/м²

















