ЖК Новый Солнечный в Воронеже
Россия, Воронеж, проспект Труда, 139Б
2 кв. 2025
Срок сдачи
Описание
Это новый уютный жилой дом в Коминтерновском районе г. Воронежа по адресу: проспект Труда 139б. Дом будет эффектно выделяться и задавать общий тон для будущего развития всей прилегающей территории. Жилой район имеет превосходную транспортную доступность, что позволяет легко добраться в любую точку города. Ближайшая остановка общественного транспорта — ост. Улица Красных Зорь, в 2 минутах ходьбы, откуда идут 8 маршрутов в различные направления.
В шаговой доступности от жилого комплекса находятся две общеобразовательные школы, детские сады, также Городской Дворец Культуры, Учреждение дополнительного образования ДЮСШ по фигурному катанию «ХРУСТАЛЬНЫЙ КОНЁК», Воронежский теннисный клуб, детская поликлиника № 8, городская взрослая поликлиника № 11, а также аптеки, отделение почтовой связи, магазины продовольственных и непродовольственных товаров, мини-рынок.
ХАРАКТЕРИСТИКИ ЖК:
монолитный дом
переменная этажность 10–18 этажей
3 подъезда
бесшумные скоростные лифты
улучшенные входные группы
эргономичные планировки правильной геометрии
торговая галерея на первом этаже
продуманное благоустройство ( газоны, цветники, детские площадки, площадки для отдыха, спортивные площадки)
видеонаблюдение
закрытая охраняемая территория
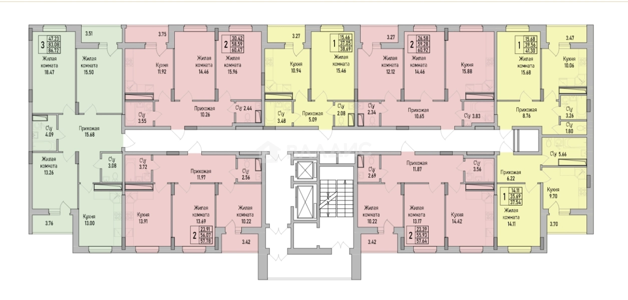
в НОВОМ СОЛНЕЧНОМ представлены 1,2,3 комнатные квартиры с просторными лоджиями и балконами. Широкий выбор планировочных решений от классики до евроформата, от функциональных однокомнатных до просторных семейных квартир.
Будут представлены квартиры редких форматов: с несколькими санузлами, с высокими потолками, с окнами «в пол».
Квартиры с качественной предчистовой отделкой.
Другие ЖК рядом































