Продается 2-комн. квартира, 53.9 м²
Россия, Воронеж, улица Суворова, 116
53.9 м²
Общая площадь
31 м²
Жилая площадь
8.1 м²
Площадь кухни
7 из 10
Этаж
Описание
Продаётся уютная 2-комнатная квартира на 7 этаже 10-этажного дома.
Квартира с удобной планировкой и отличной атмосферой!
О доме и дворе:
• Дом расположен в районе с развитой социальной и коммерческой инфраструктурой.
• Ухоженная придомовая территория
• Въезд на территорию только для жильцов
• Чистый подъезд
• Спокойные соседи
• Тихий двор
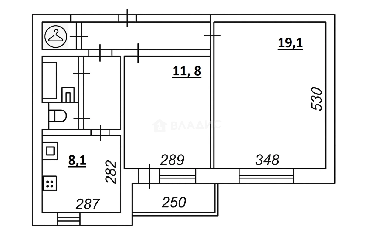
Планировка и особенности квартиры:
• Общая площадь 53,9 кв.м
• Квартира неторцевая, очень теплая (установлены биметаллические радиаторы)
• Просторная гостиная — 19 кв.м, правильной формы.
• Спальня — 12 кв.м, помещается двуспальная кровать, шкаф и зона кабинета.
• Кухня — 8,1 кв.м, встроенная мебель и техника остаются покупателю.
• Есть гардеробная — удобное решение для хранения.
• Лоджия обшита декоративными панелями. Окна на лоджии выполнены из алюминиевого профиля, раздвижная конструкция.
• В квартире выполнен косметический ремонт, произведена замена труб.
• Окна квартиры выходят на юго-восток
• Из окон квартиры открывается красивый вид в сторону ТРЦ «Максимир»
Инфраструктура:
• В шаговой доступности магазины, аптеки, пекарни, пиццерия, супермаркеты, ТРЦ «Максимир».
• Остановка «Ул. Рокоссовского», 10 маршрутов автобуса в разные районы города
• Рядом детские сады и школы: школа №71 (14 мин.), школа №19 (15 мин.), детский сад № 104 (15 мин.)
• Поликлиника – 20 мин.
• Парковая зона для прогулок и занятий спортом, пляж – 5 мин.
Юридическая информация:
Один собственник. Обременений нет. Квартира в собственности более 5 лет.
Подходит под ипотеку и материнский капитал.
Поможем одобрить ипотеку со сниженной ставкой.
Мы гарантируем безопасную сделку, предоставляем юридическую помощь нашим клиентам на всех этапах взаимодействия.
Рассмотрим покупателей со своим непроданным жильем.
О квартире
Общая площадь
53.9 м²
Жилая площадь
31 м²
Площадь кухни
8.1 м²
Высота потолков
2.7 м
Подъезд
2
Этаж
7
Расположение квартиры
не угловая
Окна выходят
На улицу
Раздельных санузлов
2
Мебель
Да
О доме
Год постройки
1999
Этажность
10
Количество подъездов
2
Материал постройки
Панельный
Материал перекрытий
Ж/б плиты
Отопление
Центральное
Пассажирских лифтов
1
Парковка
Наземная
Расположение
Россия, Воронеж, улица Суворова, 116
Ипотечный калькулятор
Заполните 1 анкету — получите предложения от десятков банков на специальных условиях
Программа ипотеки
Стоимость жилья, ₽
Первый взнос, ₽
Срок кредита
от 5.75%
Ставка
от 35 860 ₽
Платеж в месяц
Расчёт носит информационный характер и не является публичной офертой
Предложите свою цену
5 700 000 ₽
105 751 ₽/м²











































