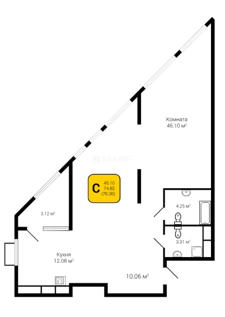
Продается квартира со св. планировкой, 76.68 м²
Россия, Воронеж, Железнодорожный район, ЖК Z-town
76.68 м²
Общая площадь
20 из 23
Этаж
Описание
ОТЕЛИЗАЦИЯ
В доме располагается консьерж-служба, прачечная и гладильная самообслуживания, а также доступны услуги клининга, выгула собак, доставки и др.
ЦИФРОВИЗАЦИЯ
Умный дом класса «C» с единой digital-платформой управления жилым комплексом, мобильным приложением, и собственным расчетным центром
ЛОКАЦИЯ
Атмосферное пространство «от земли до неба»: двор с террасой и великолепные виды из окна на водохранилище, Северный мост и правый берег
РЕЛАКСАЦИЯ
Продумано все до мелочей, чтобы вы с удовольствием жили, работали и отдыхали на территории ЖК: от детской игровой комнаты и коворкинг-зоны на верхнем этаже до благоустроенной набережной.
О квартире
Общая площадь
76.68 м²
Подъезд
1
Этаж
20
Окна выходят
На улицу
О доме
Год постройки
2025
Этажность
23
Количество подъездов
2
Материал постройки
Монолитный
Материал перекрытий
Ж/б плиты
Отопление
Центральное
Пассажирских лифтов
1
Грузовых лифтов
1
Парковка
Подземная
Расположение
Россия, Воронеж, Железнодорожный район, ЖК Z-town
Ипотечный калькулятор
Заполните 1 анкету — получите предложения от десятков банков на специальных условиях
Программа ипотеки
Стоимость жилья, ₽
Первый взнос, ₽
Срок кредита
от 5.75%
Ставка
от 85 461 ₽
Платеж в месяц
Расчёт носит информационный характер и не является публичной офертой
Похожие объекты
Консультант по новостройкам
13 584 413 ₽
177 158 ₽/м²












































































