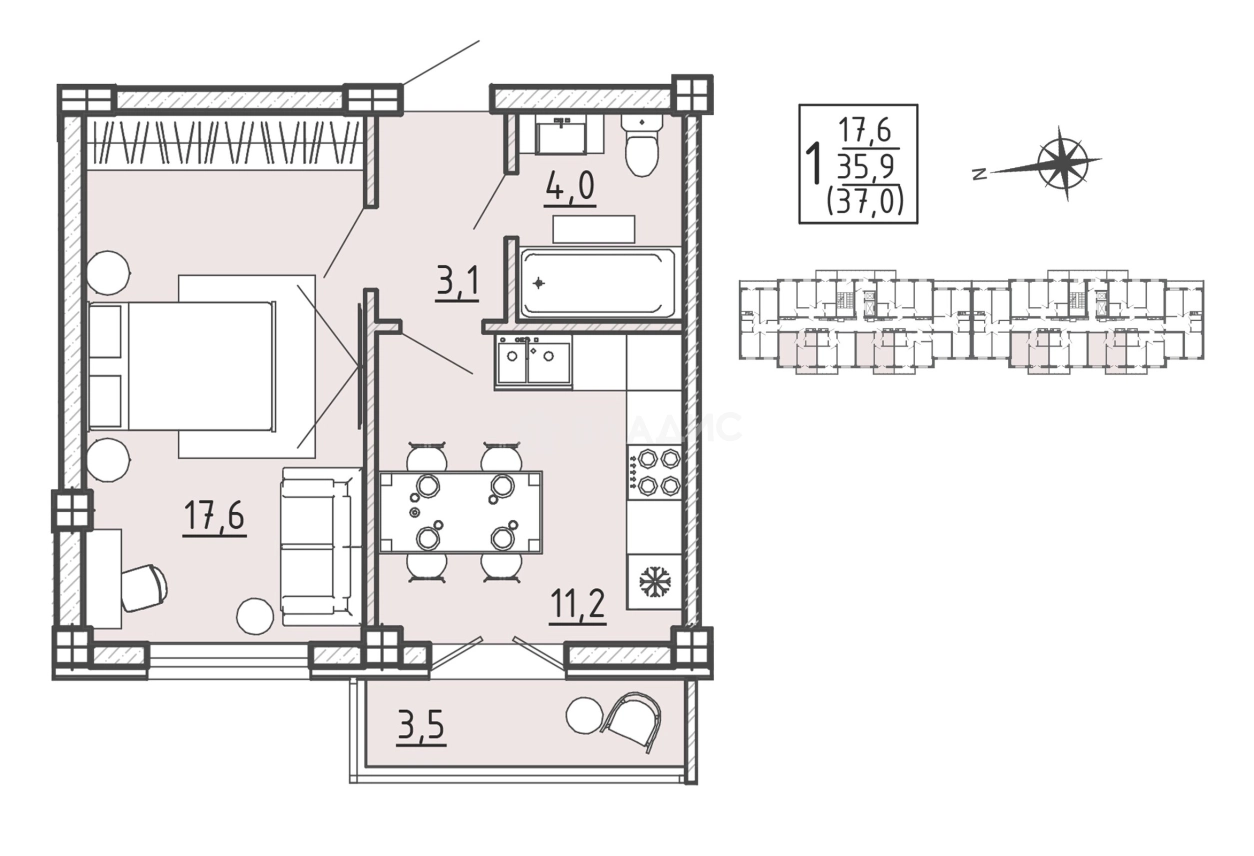
Продается 1-комн. квартира, 37 м²
Россия, Воронеж, Цимлянская улица, 10В
37 м²
Общая площадь
12 из 15
Этаж
Описание
Особенности Жилого Комплекса
Современные дома высоким уровнем отделки фасадов, подъездов и мест общего пользования
Стильные современные фасады
Просторный и светлый двор
Площадки для игр и спорта
Зоны для отдыха и общения
Большой наземный паркинг
Современный и комфортный дом
Каркас-сборно-монолитный
Наружные стены - газосиликат 300 мм с утеплителем
Наружная отделка-тонкослойная штукатурка
Кровля направляемая рулонная
Внутренние перегородки: газосиликат, кирпич
15-этажные дома на 2 подъезда
Высота потолков 2,65 м
2 бесшумных лифта в подъезде
Квартиры от 35 до 109 кв.м
Отделка предчистовая
Хорошо развитая инфраструктура района. Все необходимое рядом.
Демократичное ценообразование. Безопасная покупка через счета ЭСКРОУ.
Звоните 256 82 89.
Расскажем, покажем, забронируем.
Подберем самую выгодную для вас ипотечную программу! Материнский капитал, сертификаты.
О квартире
Общая площадь
37 м²
Подъезд
2
Этаж
12
Окна выходят
На улицу
О доме
Год постройки
2025
Этажность
15
Материал постройки
Монолитный
Материал перекрытий
Ж/б плиты
Отопление
Центральное
Парковка
Наземная
Расположение
Россия, Воронеж, Цимлянская улица, 10В
Ипотечный калькулятор
Заполните 1 анкету — получите предложения от десятков банков на специальных условиях
Программа ипотеки
Стоимость жилья, ₽
Первый взнос, ₽
Срок кредита
от 5.75%
Ставка
от 26 187 ₽
Платеж в месяц
Расчёт носит информационный характер и не является публичной офертой
Похожие объекты
Консультант по новостройкам
4 162 500 ₽
112 500 ₽/м²
























