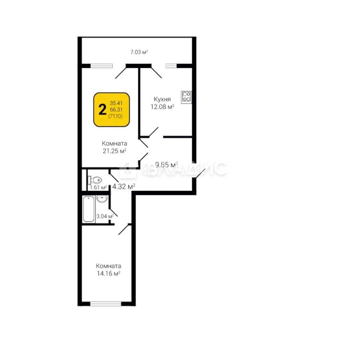
Продается 2-комн. квартира, 71.1 м²
Россия, Воронеж, переулок Здоровья, 90Г/1к1
71.1 м²
Общая площадь
35.41 м²
Жилая площадь
12.08 м²
Площадь кухни
12 из 16
Этаж
Описание
Район прекрасный. Рядом магазины: Центрторг, Магнит, Пятёрочка.
В 100 метрах вход в парк Динамо, свежий воздух, необыкновенный запах после дождя. До остановки минут 10 пешком.
Во дворе хорошая детская площадка: есть качели, песочница, скамеечки, комплекс снарядов. С верхних этажей дома прекрасный вид. Хорошая управляющая компания.
Детский сад в процессе строительства.
Квартиры сдаются с предчистовой отделкой. В каждой квартире устанавливаются современные биметаллические радиаторы, окна ПВХ, входная дверь.
О квартире
Общая площадь
71.1 м²
Жилая площадь
35.41 м²
Площадь кухни
12.08 м²
Подъезд
1
Этаж
12
Окна выходят
На улицу
Раздельных санузлов
1
Лоджия
Есть
О доме
Год постройки
2024
Этажность
16
Количество подъездов
6
Материал постройки
Кирпичный
Материал перекрытий
Ж/б плиты
Отопление
Центральное
Пассажирских лифтов
1
Грузовых лифтов
1
Парковка
Наземная
Расположение
Россия, Воронеж, переулок Здоровья, 90Г/1к1
Ипотечный калькулятор
Заполните 1 анкету — получите предложения от десятков банков на специальных условиях
Программа ипотеки
Стоимость жилья, ₽
Первый взнос, ₽
Срок кредита
от 5.75%
Ставка
от 49 203 ₽
Платеж в месяц
Расчёт носит информационный характер и не является публичной офертой
Похожие объекты
Консультант по новостройкам
7 821 000 ₽
110 000 ₽/м²



















