Купить дом на улице Невская в Воронежской области
Россия, Воронежская область, Хохольский район, село Новогремяченское, Невская улица, 25
75 м²
Площадь дома
10 сот
Площадь участка
Кирпичный
Материал постройки
1
Этажей
Описание
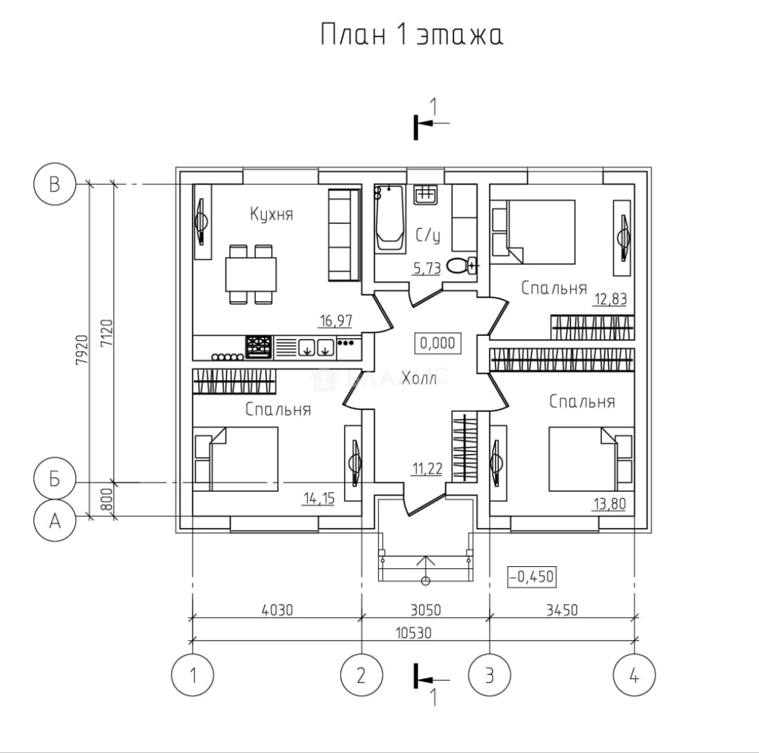
Жилой дом общей площадью 75 кв.м на участке 10 соток: 1 этаж, кухня-гостиная с выходом на террасу и 3 спальни, санузел раздельный, просторная прихожая.
* теплый, энергоэффективный дом
* прекрасное, тихое место, экологически чистый район, свежий воздух, тишина. рядом лесополоса.
* в шаговой доступности магазины и остановка общественного транспорта.
Технические характеристики:
* качественная полусухая стяжка
* утепление фасадов базальтовым утеплителем 100мм
* утепление кровли 200мм
* котел
* скважина
* канализация - 3 кольца, диаметр 2м
* качественная входная дверь с терморазрывом
Рассмотрим все виды финансирования (рассрочка, ипотека - подходит Господдержка и Семейная ипотека, маткап). Оформление от юридического лица.
Звоните! Оперативно организуем показ.
О доме
Год постройки
2023
Этажей в доме
1
Общая площадь
75 м²
Жилая площадь
40.77 м²
Площадь кухни
12.82 м²
Площадь комнат
12.82+13.8+14.15 м²
Материал постройки
Кирпичный
Материал перекрытий
Монолитные
Материал кровли
Металлочерепица
Совмещенных санузлов
1
Об участке
Площадь участка
10 сот.
Статус участка
Индивидуальное жилищное строительство
Электричество
Есть
Газ
Есть
Водоснабжение
Есть
Без благоустройства участка
Есть
Расположение
Россия, Воронежская область, Хохольский район, село Новогремяченское, Невская улица, 25
Ипотечный калькулятор
Заполните 1 анкету — получите предложения от десятков банков на специальных условиях
Программа ипотеки
Стоимость жилья, ₽
Первый взнос, ₽
Срок кредита
от 5.75%
Ставка
от 43 409 ₽
Платеж в месяц
Расчёт носит информационный характер и не является публичной офертой
Предложите свою цену
6 900 000 ₽
92 000 ₽/м²



























