Купить дом на улице Баррикадный переулок в Воронежской области
Россия, Воронежская область, Рамонский район, село Ямное, Баррикадный переулок, 28
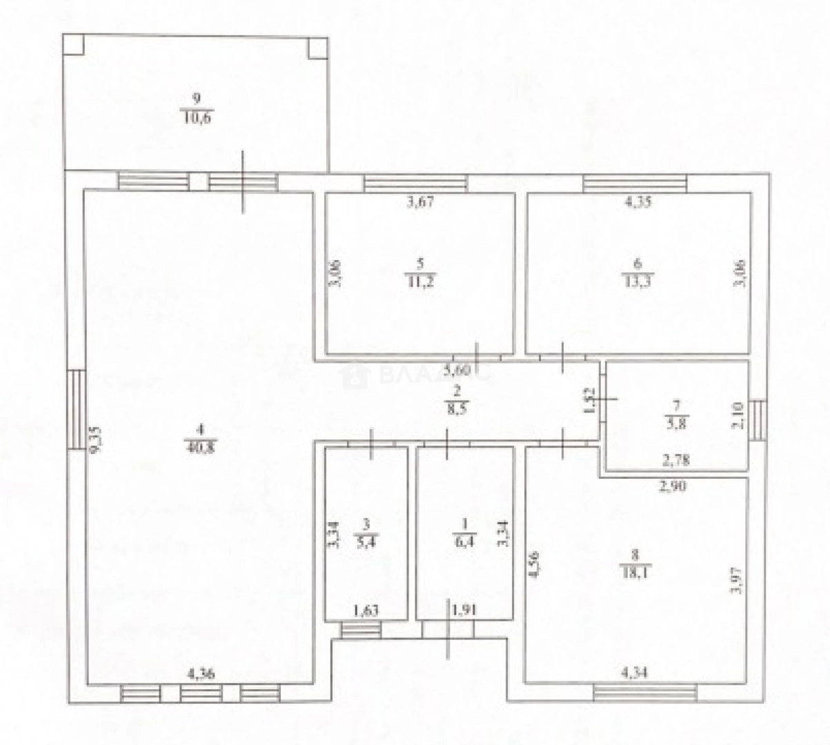
127.5 м²
Площадь дома
6 сот
Площадь участка
Кирпичный
Материал постройки
1
Этажей
Описание
Расположение:
🏡 Всего 11 км до города — идеальное сочетание тишины и доступности.
🏡 Асфальтированный подъезд к участку.
Площадь и планировка:
🏘️ Общая площадь дома — 127,5 кв. м, жилая — 41,7 кв. м.
🏘️ Три комнаты с площадями 11, 13 и 17,7 кв. м, кухня — 40,2 кв. м.
🏘️ Высота потолков — 3 м, просторные и светлые помещения.
Инфраструктура:
🚘 Развитая инфраструктура: школы, детские сады, магазины — всё в шаговой доступности.
🌳 Зелёные зоны и парки для прогулок и отдыха.
Особенности:
🏠 Кладка из керамоблока, деревянные перекрытия, индивидуальный котёл отопления.
🏠 White box ремонт — позволяет новым владельцам воплотить свои дизайнерские идеи!
🏙️ Дом идеально подходит для круглогодичного проживания. Участок имеет статус индивидуального жилищного строительства. Асфальтированный подъезд к участку обеспечивает удобный доступ в любое время года.
🏠Не упустите свой шанс приобрести дом по выгодной цене!🎰
📞 Позвоните мне, чтобы узнать больше и договориться о просмотре!☎
О доме
Год постройки
2024
Этажей в доме
1
Общая площадь
127.5 м²
Жилая площадь
41.7 м²
Площадь кухни
40.2 м²
Площадь комнат
11+13+17,7 м²
Материал постройки
Кирпичный
Материал перекрытий
Деревянные
Материал кровли
Металлочерепица
Высота потолков
3 м
Об участке
Площадь участка
6 сот.
Статус участка
Индивидуальное жилищное строительство
Электричество
Есть
Газ
Есть
Водоснабжение
Есть
Канализация
Есть
Без благоустройства участка
Есть
Подъезд к участку
Асфальт
Расположение
Россия, Воронежская область, Рамонский район, село Ямное, Баррикадный переулок, 28
Ипотечный калькулятор
Заполните 1 анкету — получите предложения от десятков банков на специальных условиях
Программа ипотеки
Стоимость жилья, ₽
Первый взнос, ₽
Срок кредита
от 5.75%
Ставка
от 72 348 ₽
Платеж в месяц
Расчёт носит информационный характер и не является публичной офертой
Похожие объекты































Дом, 130 м², 10 сот.
























Дом, 113 м², 6 сот.





























Дом, 119 м², 6,3 сот.
































Дом, 132,7 м², 8,9 сот.
Предложите свою цену
11 500 000 ₽
90 196 ₽/м²
















































































