Купить дом на улице Кедровая в Воронежской области
Россия, Воронежская область, Рамонский район, Айдаровское сельское поселение, село Староживотинное, Кедровая улица, 7
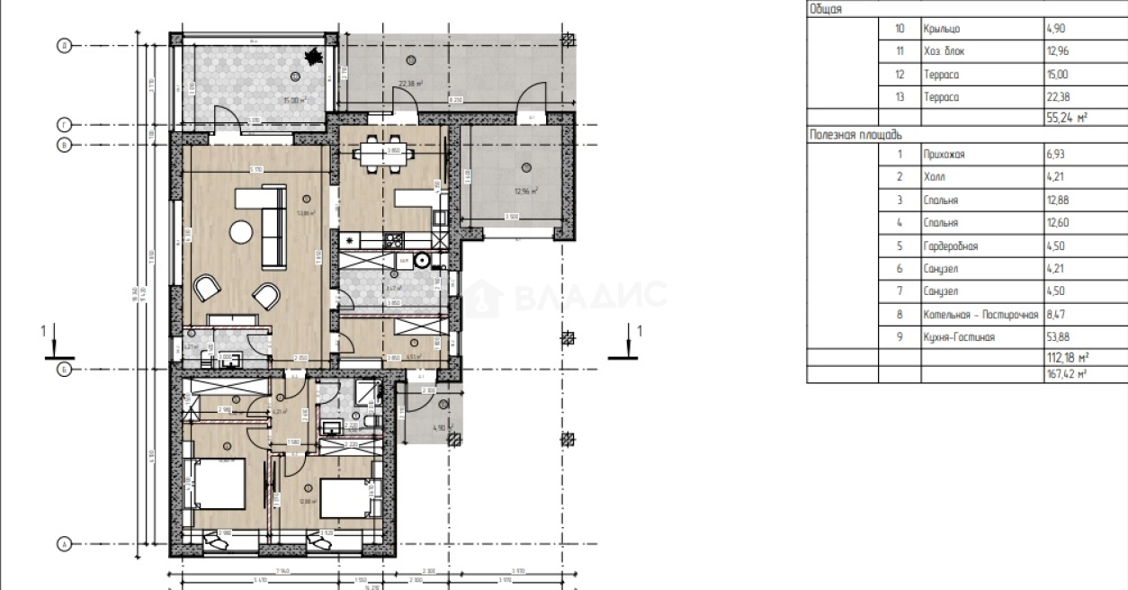
152.6 м²
Площадь дома
13 сот
Площадь участка
Газобетонный блок
Материал постройки
1
Этажей
Описание
Характеристики, которые впечатляют
Просторный дом площадью 152,6 м² с продуманной планировкой:
• Просторная гостиная с камином 35,9 м²
• Современная кухня-столовая 17,6 м²
• Две светлые спальни 12,5 м² и 13,2 м²
• Терраса для отдыха на свежем воздухе (остекленная 15,6 м² и открытая 22,78 м²)
• Холл 4,12 м²; Прихожая 7.2 м²
• Гардеробная 4,5 м²
• Санузел 4,21 м² и 4,5 м²
• Котельная – Постирочная 8.7 м²
• Гараж на два автомобиля (3,97 м * 8,26 м) с хоз. блоком 12.9 м²
Преимущества, которые выделяют
Участок 12,77 соток (На участке растут ели).
• Баня с террасой 52 м²
Качество строительства:
• Фундамент - ж/б сваи 200х200, ростверк 400мм, ж/б плита толщиной 100мм.
• Стены ограждающие несущие и самонесущие: газобетонный блок 400мм, утеплитель 50мм, штукатурка 20мм.;
• Стены внутренние несущие 300мм - кладка из газобетонного блока; перегородки 120мм - кладка из силикатного кирпича.
• Монолитно-бетонный армопояс (Бетон В25 (М350); Арматура д.12; ЭППС 50мм)
• Перекрытие деревянное, толщина 200мм.
• Крыша - сложной формы, мягкая кровля.
• Вокруг здания армированная бетонная отмостка толщиной 100мм на щебёночном основании с заложением утеплителя ЭППС q=35кг/м3 шириной 1200мм.
• Все металлические элементы обработаны грунтовкой ГФ-021 в 2 слоя до установки в конструкцию. Все сварные швы обработаны грунтовкой ГФ-021 в 2 слоя.
• Все деревянные элементы обработаны влагостойкими составами антисептиков и огнепиренов в 2 слоя.
• Современные инженерные системы
• Энергоэффективные окна
Расположение:
• 20 минут до города
• Развитая инфраструктура
• Благоустроенный район
• Охраняемая территория
Выгоды, которые вы получите
Качество жизни:
• Чистый воздух и экологичная среда
• Собственный участок для отдыха и садоводства
• Возможность создания идеального пространства под себя
• Уединение и приватность
Инвестиция в будущее:
• Комфортное проживание для всей семьи
• Возможность передачи по наследству
• Стабильный рост стоимости загородной недвижимости
Не откладывайте свою мечту о собственном доме. Запишитесь на просмотр прямо сейчас и станьте владельцем идеального загородного дома вашей мечты!
О доме
Год постройки
2025
Этажей в доме
1
Общая площадь
152.6 м²
Жилая площадь
61.4 м²
Площадь кухни
17.6 м²
Площадь комнат
12,3+13,2+35,9 м²
Материал постройки
Газобетонный блок
Материал перекрытий
Деревянные
Материал кровли
Мягкая черепица
Высота потолков
3.2 м
Об участке
Площадь участка
13 сот.
Статус участка
Дачное некоммерческое партнерство
Электричество
Есть
Водоснабжение
Есть
Канализация
Есть
Гараж
Есть
Подъезд к участку
Асфальт
Расположение
Россия, Воронежская область, Рамонский район, Айдаровское сельское поселение, село Староживотинное, Кедровая улица, 7
Ипотечный калькулятор
Заполните 1 анкету — получите предложения от десятков банков на специальных условиях
Программа ипотеки
Стоимость жилья, ₽
Первый взнос, ₽
Срок кредита
от 5.75%
Ставка
от 113 240 ₽
Платеж в месяц
Расчёт носит информационный характер и не является публичной офертой
Предложите свою цену
18 000 000 ₽
117 955 ₽/м²














































