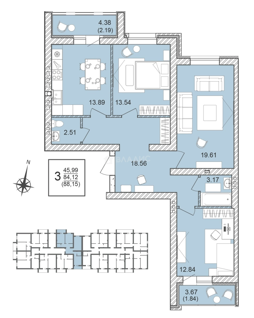
Продается 3-комн. квартира, 88.1 м²
Россия, Воронежская область, Новоусманский район, Отрадненское сельское поселение, село Александровка
88.1 м²
Общая площадь
4 из 4
Этаж
Описание
Граничащие с Воронежем с южной стороны поселки Отрадное и Александровка являются одним из основных направлений развития мегаполиса в силу своего удачного расположения. И застройка здесь уже активно ведется – некоторые проекты успешно реализованы, другие – только начинаются. Всего на ближайшие несколько лет планируется возвести примерно 200 000 кв.м современного, мало- и среднеэтажного жилья.
Характеристики ЖК:
- объемно блочное домостроение
- 20 трехэтажных корпусов, объединенных в небольшие кварталы
- двор без авто
- огороженная территория
- видеонаблюдение
- благоустройство дворов
- колясочные и помещения под велосипеды на 1 этаже
- просторные квартиры
- квартиры с отделкой
- индивидуальные системы отопления и нагрева воды
- экономия на ЖКХ ( сельские тарифы)
- детский сад в 500 м
- бесплатный школьный автобус в Отрадное
ЖК Александровский Сад – отличный выбор для молодых мобильных семей, в приоритете у которых – экологичность и атмосфера добрососедства.
О квартире
Общая площадь
88.1 м²
Подъезд
1
Этаж
4
Окна выходят
На улицу
Раздельных санузлов
1
Лоджия
Есть
О доме
Год постройки
2025
Этажность
4
Материал постройки
Блочный
Материал перекрытий
Ж/б плиты
Отопление
Своя котельная
Пассажирских лифтов
1
Грузовых лифтов
1
Парковка
Наземная
Расположение
Россия, Воронежская область, Новоусманский район, Отрадненское сельское поселение, село Александровка
Ипотечный калькулятор
Заполните 1 анкету — получите предложения от десятков банков на специальных условиях
Программа ипотеки
Стоимость жилья, ₽
Первый взнос, ₽
Срок кредита
от 5.75%
Ставка
от 58 196 ₽
Платеж в месяц
Расчёт носит информационный характер и не является публичной офертой
Похожие объекты









3-комн. квартира, 81,3 м², 4/4 эт.










3-комн. квартира, 88,1 м², 1/4 эт.









3-комн. квартира, 80,9 м², 1/4 эт.










2-комн. квартира, 81,2 м², 1/4 эт.
Консультант по новостройкам
9 250 500 ₽
105 000 ₽/м²




























