Продается Студия, 30.41 м²
Россия, Воронежская область, Рамонский район, посёлок Солнечный, Кленовая улица, 1
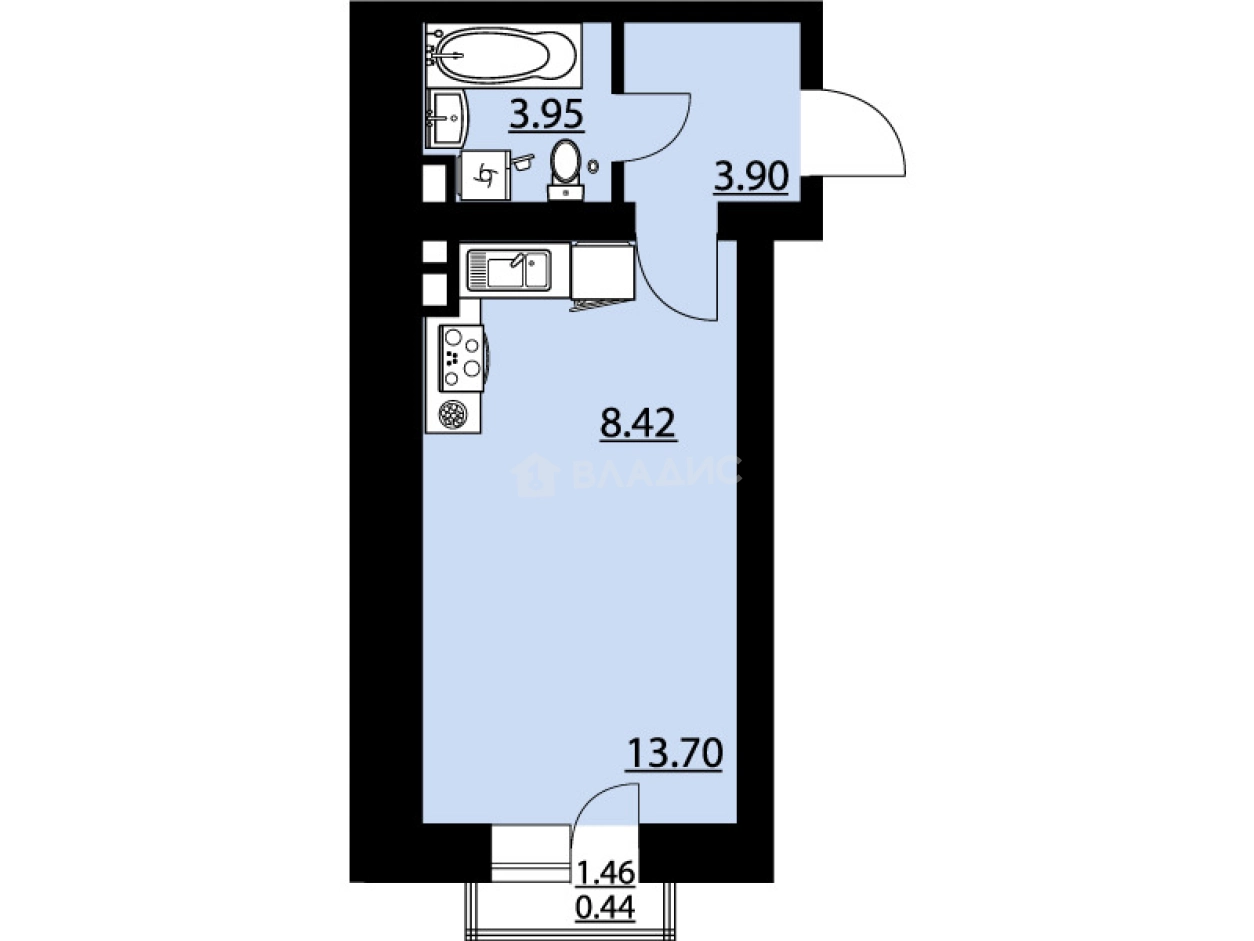
30.41 м²
Общая площадь
13.7 м²
Жилая площадь
4 из 10
Этаж
Описание
ЖК Финский Квартал - новый формат городского жилья, с впечатляющей территорией. В основе проекта — финская философия домостроения. Жилой комплекс сочетает в себе индивидуальность европейской архитектуры и ландшафтного дизайна, современные технологии и гармоничную связь с природой. В «Финском квартале» семь вариантов остекленных и открытых лоджий и балконов и террас.
СНАРУЖИ
Среднеэтажная застройка квартала и продуманная концепция территории создают комфортную жилую среду.
В ЖК использована концепция «двор без машин». Дворовые пространства будут максимально безопасными для детей. При этом ЖК будет обеспечен большим количеством парковочных мест. В каждом дворе три зоны — тихая, активная и детская. Центральная детская площадка будет оборудована ландшафтными скалодромами, канатной мини-дорогой, «водной» песочницей и другими уникальными объектами. Продуманная красота ландшафтного дизайна двора будет радовать, и создавать настроение каждый день. Территория квартала огорожена по периметру, установлена система видеонаблюдения.
ВНУТРИ
Толщина наружных стен (640 мм) обеспечивает высокий уровень шумоизоляции и теплоизоляции (зимой тепло, летом не жарко). Во всех квартирах проекта увеличенные окна с архитектурным остеклением. Стекло со специальным покрытием позволит снизить перегрев помещений в летнее время, пропуская оптимальное количество дневного света. В комплексе будет установлена автоматизированная система учета электроэнергии и теплоснабжения, обеспечивающая автоматический сбор показателей со счетчиков. Собственная газовая котельная, расположенная на территории ЖК, обеспечит бесперебойное теплоснабжение и подачу горячей воды.
Квартиры в жилом комплексе планируется оснастить базовыми комплектами системы «умный дом» от мирового лидера в области производства электрооборудования.
О квартире
Общая площадь
30.41 м²
Жилая площадь
13.7 м²
Подъезд
3
Этаж
4
Окна выходят
На улицу
Ремонт
Чистовая
О доме
Год постройки
2023
Этажность
10
Количество подъездов
4
Материал постройки
Монолитный
Материал перекрытий
Монолитные
Отопление
Индивидуальный котел
Парковка
Наземная
Расположение
Россия, Воронежская область, Рамонский район, посёлок Солнечный, Кленовая улица, 1
Ипотечный калькулятор
Заполните 1 анкету — получите предложения от десятков банков на специальных условиях
Программа ипотеки
Стоимость жилья, ₽
Первый взнос, ₽
Срок кредита
от 5.75%
Ставка
от 31 471 ₽
Платеж в месяц
Расчёт носит информационный характер и не является публичной офертой
Похожие объекты







































Студия, 30,3 м², 1/10 эт.







































Студия, 30,0 м², 3/10 эт.



























Студия, 32,3 м², 8/10 эт.



























Студия, 32,4 м², 7/10 эт.
Консультант по новостройкам
5 002 445 ₽
164 500 ₽/м²








































