Купить таунхаус на улице переулок Маршала Вершинина в Воронежской области
Россия, Воронежская область, Рамонский район, Яменское сельское поселение, деревня Новоподклетное, коттеджный посёлок Северная Гардарика, переулок Маршала Вершинина
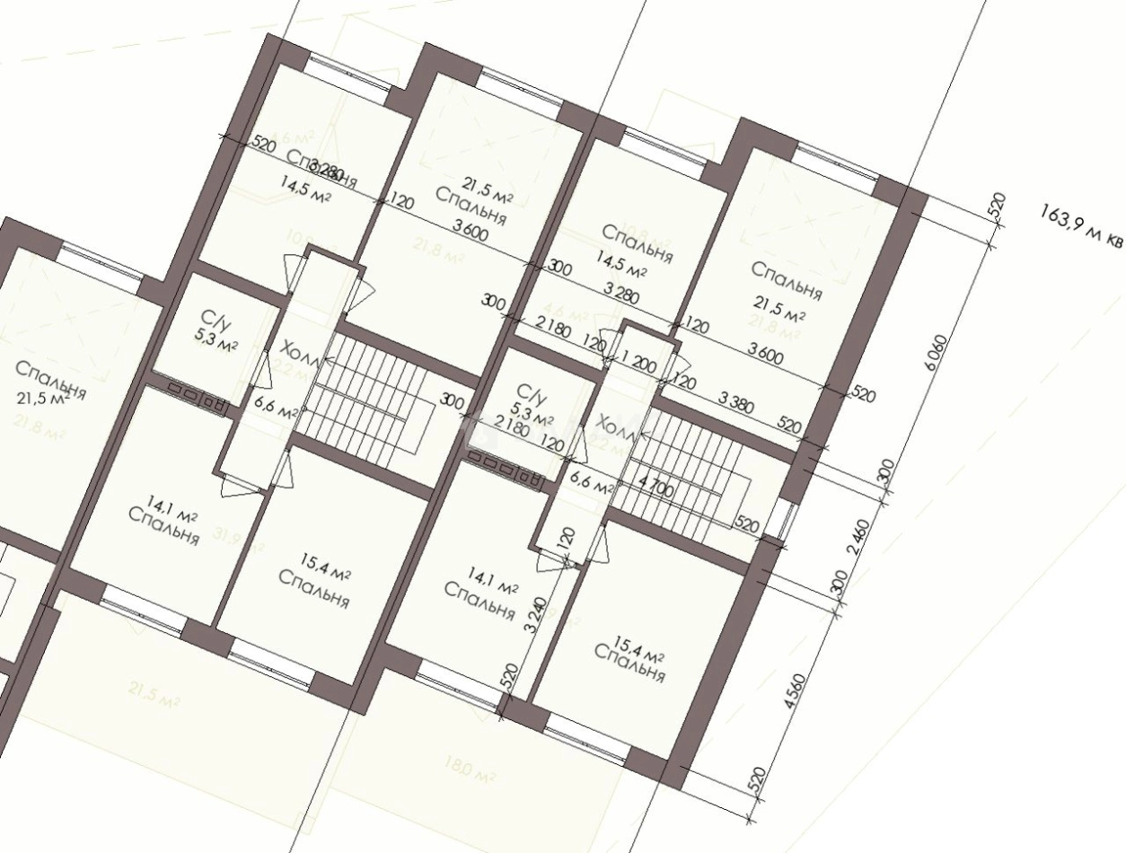
253.7 м²
Площадь дома
4.03 сот
Площадь участка
Кирпичный
Материал постройки
2
Этажей
Описание
С приобретением таунхауса в этом элитном охраняемом коттеджном поселке, вы обретаете не просто дом , двор и гараж, вы получаете настоящую атмосферу курорта, идеальное сочетание городской близости и умиротворения загородной жизни, ограниченное количество жильцов и высокий уровень приватности.
Проживание в поселке подчеркнет ваш статус и принадлежность к определенному кругу людей.
И это всего в 10 км от Воронежа, на берегу живописного озера Круглое!
Дом очень стильный, выполнен из кирпича с акцентами гиперпрессованного колотого материала, состоит из двух этажей с добротными бетонными перекрытиями. С верхнего этажа открываются великолепные панорамные виды на озеро и окружающие красоты.
Вас ждет просторная кухня-гостиная, украшенная французскими окнами, которые ведут на уютную террасу. В доме расположены четыре изолированные спальни и санузлы на каждом этаже. Для вашего комфорта предусмотрены теплые полы и самостоятельная скважина, обеспечивающая бесперебойную подачу воды.
Цокольный этаж становится площадкой для ваших идей: оборудуйте здесь сауну, мастерскую или спортзал. Прямой выход из дома ведет в гараж. На территории перед домом предусмотрена парковка на три автомобиля.
На камерном дворике у вас будет возможность установить барбекю, качели или беседку, обустроить газон или деревья по вашему вкусу.
Записывайтесь на просмотр, здесь у вас будет возможность задать все вопросы, детально рассмотреть то, что вы не увидели на фото, прогуляться по улочкам поселка и ощутить дружелюбное, и в то же время ненавязчивое комьюнити.
☎️ Звоните, обсудим удобные для вас варианты оплаты и альтернативные варианты приобретения!
Подходит под семейную ипотеку! Возможны варианты обмена!
О доме
Год постройки
2024
Этажей в доме
2
Общая площадь
253.7 м²
Жилая площадь
120 м²
Площадь кухни
45 м²
Материал постройки
Кирпичный
Материал перекрытий
Ж/б плиты
Материал кровли
Металлочерепица
Высота потолков
3 м
Раздельных санузлов
2
Об участке
Площадь участка
4.03 сот.
Статус участка
Индивидуальное жилищное строительство
Электричество
Есть
Газ
Есть
Водоснабжение
Есть
Канализация
Есть
Гараж
Есть
Подъезд к участку
Асфальт
Расположение
Россия, Воронежская область, Рамонский район, Яменское сельское поселение, деревня Новоподклетное, коттеджный посёлок Северная Гардарика, переулок Маршала Вершинина
Ипотечный калькулятор
Заполните 1 анкету — получите предложения от десятков банков на специальных условиях
Программа ипотеки
Стоимость жилья, ₽
Первый взнос, ₽
Срок кредита
от 5.75%
Ставка
от 122 519 ₽
Платеж в месяц
Расчёт носит информационный характер и не является публичной офертой
Предложите свою цену
19 475 000 ₽
76 764 ₽/м²

















































