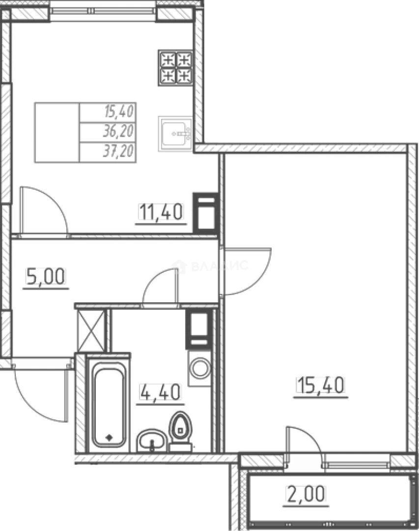
Продается 1-комн. квартира, 36.2 м²
Россия, Ленинградская область, Всеволожск, ЖК Огоньки
Девяткино
20 мин.
36.2 м²
Общая площадь
15.4 м²
Жилая площадь
11.4 м²
Площадь кухни
6 из 6
Этаж
Описание
В жилом комплексе предложено множество планировочных решений: в наличии квартиры, как классического типа, так и европланировки. Сдаются они с подчистовой отделкой, увеличенными окнами и стандартными окнами на первом этаже, высотой потолков 2,75 метра.
На закрытой территории ЖК выполнено озеленение, расположены современные детские площадки и workout зона. Для владельцев автомобилей предусмотрена охраняемая стоянка.
Комплекс расположен в городе Всеволожск. В шаговой доступности магазины, аптеки, поликлиника, школа, детский сад. В 20 минутах транспортом выезд на КАД. Метро «Гражданский проспект» в 30 минутах транспортом, Метро «Улица Дыбенко» в 35 минутах транспортом.
О квартире
Общая площадь
36.2 м²
Жилая площадь
15.4 м²
Площадь кухни
11.4 м²
Площадь комнат
15.4 м²
Высота потолков
2.75 м
Этаж
6
Окна выходят
На улицу
О доме
Год постройки
2027
Этажность
6
Материал постройки
Монолитный
Материал перекрытий
Монолитные
Отопление
Центральное
Парковка
Наземная
Расположение
Россия, Ленинградская область, Всеволожск, ЖК Огоньки
Девяткино
20 мин.
Проспект Большевиков
21 мин.
Гражданский проспект
21 мин.
Улица Дыбенко
21 мин.
Ладожская
22 мин.
Новочеркасская
24 мин.
Елизаровская
27 мин.
Ломоносовская
28 мин.
Ипотечный калькулятор
Заполните 1 анкету — получите предложения от десятков банков на специальных условиях
Программа ипотеки
Стоимость жилья, ₽
Первый взнос, ₽
Срок кредита
от 5.75%
Ставка
от 35 117 ₽
Платеж в месяц
Расчёт носит информационный характер и не является публичной офертой
Похожие объекты




1-комн. квартира, 32,8 м², 3/7 эт.
Проспект Большевиков
19 мин.







1-комн. квартира, 40,4 м², 16/18 эт.
Проспект Большевиков
19 мин.







1-комн. квартира, 40,4 м², 14/18 эт.
Проспект Большевиков
19 мин.





1-комн. квартира, 34,6 м², 10/12 эт.
Проспект Большевиков
19 мин.
Консультант по новостройкам
5 582 000 ₽
154 199 ₽/м²














