Продается 1-комн. квартира, 38.18 м²
Россия, Ленинградская область, Выборг, Малая Каменная улица, 10к3
38.18 м²
Общая площадь
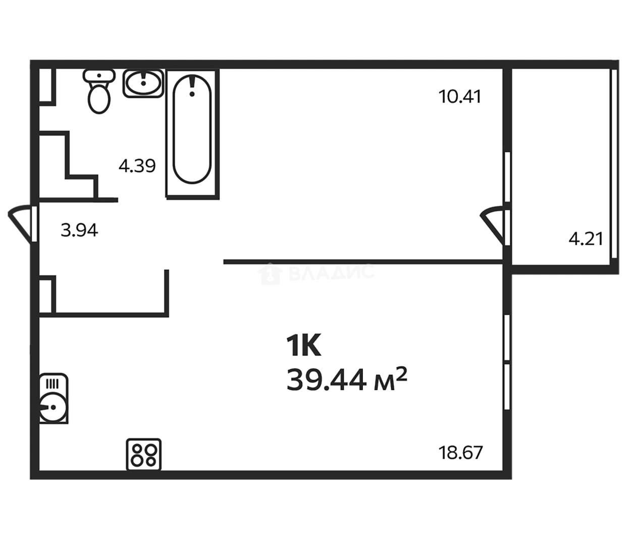
10.41 м²
Жилая площадь
18.67 м²
Площадь кухни
4 из 9
Этаж
Описание
В проекте предложено множество планировочных решений: однокомнатные, двухкомнатные и трехкомнатные квартиры. Сдаются они с высотой потолков 2.7 метров, увеличенными окнами, без отделки, с подчистовой и чистовой отделкой в 2-х вариантах. Имеются квартиры с видом на город, Выборгский залив и сосновый лес.
На закрытой и охраняемой территории комплекса спроектирована парковая зона, велосипедные дорожки, зоны барбекю, беседки, детские и спортивные площадки.
Жилой комплекс расположен в экологически чистом районе с развитой инфраструктурой. В пешей доступности расположены 2 школы, 3 детских сада, магазины, спортивный комплекс «Южный». За 2 минуты пешком можно добраться до Соснового леса.
О квартире
Общая площадь
38.18 м²
Жилая площадь
10.41 м²
Площадь кухни
18.67 м²
Площадь комнат
10.41 м²
Высота потолков
2.7 м
Этаж
4
Окна выходят
На улицу
О доме
Год постройки
2026
Этажность
9
Материал постройки
Панельный
Материал перекрытий
Монолитные
Отопление
Центральное
Парковка
Наземная
Расположение
Россия, Ленинградская область, Выборг, Малая Каменная улица, 10к3
Ипотечный калькулятор
Заполните 1 анкету — получите предложения от десятков банков на специальных условиях
Программа ипотеки
Стоимость жилья, ₽
Первый взнос, ₽
Срок кредита
от 5.75%
Ставка
от 35 978 ₽
Платеж в месяц
Расчёт носит информационный характер и не является публичной офертой
Похожие объекты




1-комн. квартира, 37,3 м², 6/9 эт.




1-комн. квартира, 38,2 м², 8/9 эт.




1-комн. квартира, 37,3 м², 7/9 эт.




1-комн. квартира, 37,7 м², 1/9 эт.
Консультант по новостройкам
5 718 800 ₽
149 786 ₽/м²





