Купить дом на улице Калиновая в Зеленоградске
Россия, Калининградская область, Зеленоградск, Калиновая улица, 6
286 м²
Площадь дома
24 сот
Площадь участка
Блочный
Материал постройки
2
Этажей
Описание
ВЫСОКОЕ КАЧЕСТВО СТРОИТЕЛЬСТВА! РЕСПЕКТАБЕЛЬНЫЕ СОСЕДИ! ХОРОШИЕ ПОДЪЕЗДНЫЕ ПУТИ!
ДОМ СТРОИЛСЯ ДЛЯ СЕБЯ! НЕ ЭКОНОМИЛИ НИ НА ЧЕМ!
Предлагается к продаже двухэтажный дом на участке 24 сотки!!! в центре поселка Малиновка Зеленоградского района.
Ориентиры: ул. Сиреневая, ул. Цветочная, ул. Прибрежная, ул. Полевая, ул. Морская.
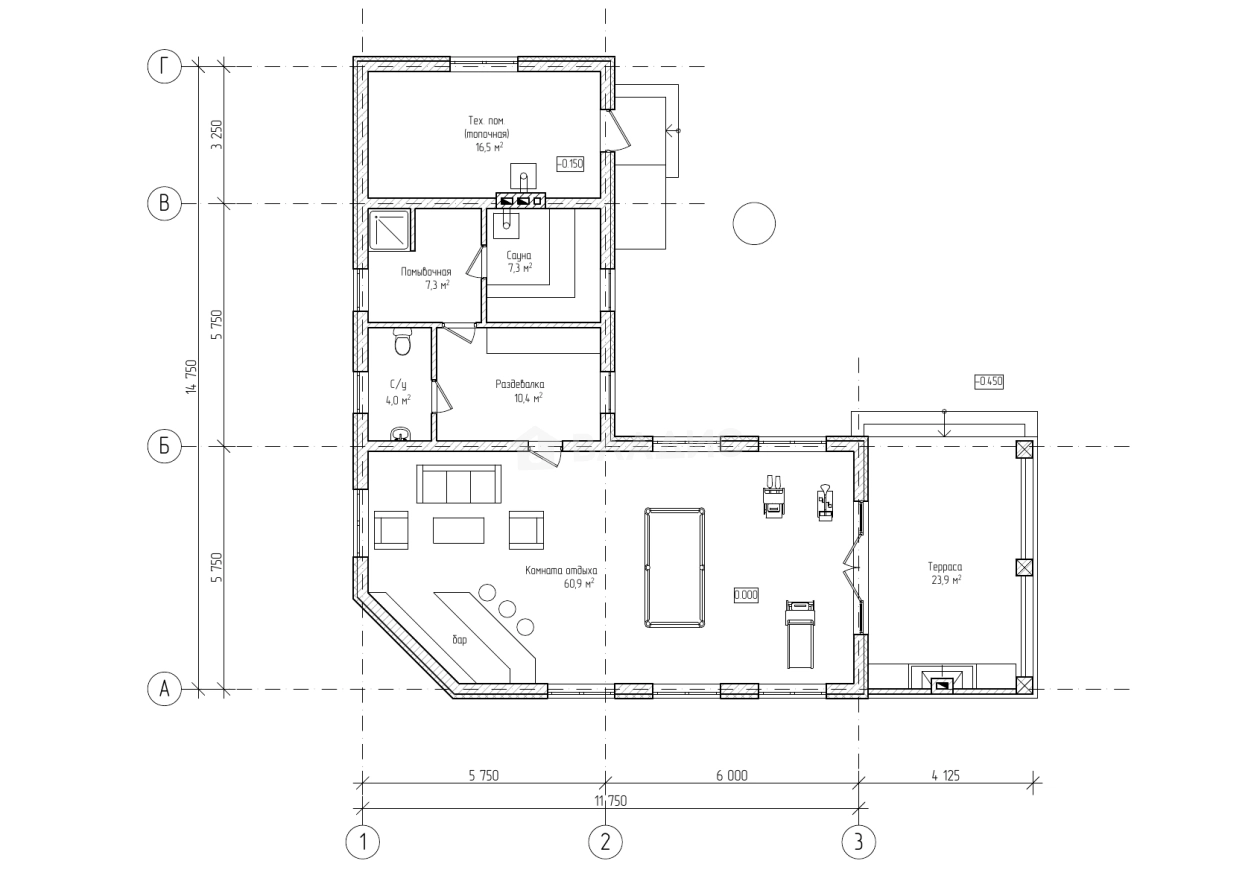
Общая площадь дома 286 м² на участке 24 сотки, всё в собственности. На участке заложен фундамент под гостевой дом банный комплекс 128 кв.м. или отдельно стоящий дом.
есть встроенный гараж 30 кв.м. и терраса 26 кв.м..
Конструктив: Дом построен из качественных строительных материалов с соблюдением технологий строительных работ. А значит самое главное, ваша безопасность соблюдена. Материал стен дома – газосиликатный качественный блок AEROBLOK D500.
—крыша керамическая черепица.
Фасад дома не оформлен, что дает возможность будущему хозяину убедиться в качественной кладке и по своему вкусу и предпочтениям оформить фасад дома.
Дом строился для себя, планировка продумана, а стадия строительства позволяет самостоятельно создать дальнейший дизайн сделать ремонт по своему вкусу используя каждый квадратный метр.
Дом правильно размещен на сухом, ровном участке. Участок ухоженный, земля плодородная, чернозем. Есть садовые насаждения.
Проведено межевание участка, по границам установлен забор.
— земельный участок 24 сотки ИЖД (оформлен в собственность). Участок угловой (два соседа с одной стороны), ровный.
Коммуникации: газ рядом с участком.
— электричество в доме (прямое подключение к электросетям с мощностью до 15 КВт).
— водоснабжение центральное рядом с участком.
— канализация центральная рядом.
К дому ведет грунтовая дорога. После окончания строительных работ в поселке планируется строительство асфальтированной дороги. Дом расположен всего в 15 минутах пешей ходьбы до Балтийского моря. Пляж «Малиновка» излюбленное место для отдыха горожан и туристов благодаря своему широкому песчаному берегу. В поселке развитая инфраструктура, великолепное транспортное сообщение. Удобный и быстрый выезд на центральную магистраль позволит быстро добраться в город Зеленоградск. А до города Калининграда можно добраться за 15-20 минут по трассе "Приморское кольцо". Но самое главное всего за 40 мин езды Вы окажетесь в уникальном Национальном парке «Куршская коса», внесенным в список культурного наследия ЮНЕСКО, где Вас ждет неописуемые по красоте ландшафты, самые высокие в Европе дюны, «Танцующий лес», редкие птицы и растения, «Музей русских суеверий», «Высота Эфа», «Королевский бор» и озеро Лебедь.
Без обременений. Быстрый выход на сделку.
Спешите приобрести просторный дом в востребованном районе!
ЗВОНИТЕ ПРЯМО СЕЙЧАС! С удовольствием отвечу на все Ваши вопросы! Организуем просмотр в удобное для Вас время!
О доме
Год постройки
2017
Этажей в доме
2
Общая площадь
286 м²
Жилая площадь
120.6 м²
Площадь кухни
25.2 м²
Площадь комнат
16+26,8+15,8+16+ 16+12,2+17,8 м²
Материал постройки
Блочный
Материал перекрытий
Ж/б плиты
Материал кровли
Керамическая черепица
Совмещенных санузлов
2
Об участке
Площадь участка
24 сот.
Статус участка
Индивидуальное жилищное строительство
Электричество
Есть
Гараж
Есть
Подъезд к участку
Грунтовка
Расположение
Россия, Калининградская область, Зеленоградск, Калиновая улица, 6
Ипотечный калькулятор
Заполните 1 анкету — получите предложения от десятков банков на специальных условиях
Программа ипотеки
Стоимость жилья, ₽
Первый взнос, ₽
Срок кредита
от 5.75%
Ставка
от 115 756 ₽
Платеж в месяц
Расчёт носит информационный характер и не является публичной офертой
Предложите свою цену
18 400 000 ₽
64 336 ₽/м²






























