Продается 1-комн. квартира, 33.7 м²
Россия, Московская область, Одинцовский городской округ, Звенигород, район Восточный, 3-й микрорайон, 3
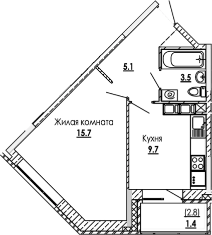
33.7 м²
Общая площадь
14.7 м²
Жилая площадь
9.2 м²
Площадь кухни
8 из 12
Этаж
Описание
В проекте предложены однокомнатные и двухкомнатные квартиры, различные по площади и планировке. В некоторых квартирах предусмотрены лоджии с панорамным остеклением, есть планировки с 2 санузлами, изолированными гостиными и спальнями, местами для шкафов-купе. Из части квартир на верхних этажах открывается вид на Москву-реку.
Придомовая территория комплекса благоустроена и озеленена. Во дворе оборудованы детские игровые площадки, для владельцев автомобилей предусмотрены открытые наземные парковки.
Жилой комплекс находится в одном из наиболее экологически чистых районов Подмосковья — Звенигороде. Район отличается развитой инфраструктурой и хорошей транспортной доступностью. Поблизости находятся детские сады, школы, медицинские учреждения, торговые комплексы, магазины, культурный центр, спорткомплекс, бассейн и экопарк. Всего в 500 метрах от микрорайона протекает Москва-река. Центр Звенигорода находится буквально в 15 минутах ходьбы. Из Москвы до комплекса можно добраться на автомобиле, электричке или автобусе. Время в пути на общественном транспорте до ближайшей станции метро «Строгино» займет около 40 минут.
О квартире
Общая площадь
33.7 м²
Жилая площадь
14.7 м²
Площадь кухни
9.2 м²
Площадь комнат
14.7 м²
Высота потолков
2.73 м
Подъезд
2
Этаж
8
Окна выходят
На улицу
О доме
Год постройки
2026
Этажность
12
Количество подъездов
4
Материал постройки
Кирпично-монолитный
Материал перекрытий
Монолитные
Отопление
Центральное
Пассажирских лифтов
1
Грузовых лифтов
1
Парковка
Наземная
Расположение
Россия, Московская область, Одинцовский городской округ, Звенигород, район Восточный, 3-й микрорайон, 3
Ипотечный калькулятор
Заполните 1 анкету — получите предложения от десятков банков на специальных условиях
Программа ипотеки
Стоимость жилья, ₽
Первый взнос, ₽
Срок кредита
от 5.75%
Ставка
от 31 208 ₽
Платеж в месяц
Расчёт носит информационный характер и не является публичной офертой
Похожие объекты






1-комн. квартира, 35,4 м², 12/12 эт.






1-комн. квартира, 35,4 м², 5/12 эт.






1-комн. квартира, 35,4 м², 6/12 эт.






1-комн. квартира, 35,1 м², 3/12 эт.
Консультант по новостройкам
4 960 640 ₽
147 200 ₽/м²







