Продается 2-комн. квартира, 61.3 м²
Россия, Московская область, Одинцовский городской округ, Звенигород
61.3 м²
Общая площадь
34 м²
Жилая площадь
10.9 м²
Площадь кухни
10 из 12
Этаж
Описание
В проекте предложены однокомнатные и двухкомнатные квартиры, различные по площади и планировке. В некоторых квартирах предусмотрены лоджии с панорамным остеклением, есть планировки с 2 санузлами, изолированными гостиными и спальнями, местами для шкафов-купе. Из части квартир на верхних этажах открывается вид на Москву-реку.
Придомовая территория комплекса благоустроена и озеленена. Во дворе оборудованы детские игровые площадки, для владельцев автомобилей предусмотрены открытые наземные парковки.
Жилой комплекс находится в одном из наиболее экологически чистых районов Подмосковья — Звенигороде. Район отличается развитой инфраструктурой и хорошей транспортной доступностью. Поблизости находятся детские сады, школы, медицинские учреждения, торговые комплексы, магазины, культурный центр, спорткомплекс, бассейн и экопарк. Всего в 500 метрах от микрорайона протекает Москва-река. Центр Звенигорода находится буквально в 15 минутах ходьбы. Из Москвы до комплекса можно добраться на автомобиле, электричке или автобусе. Время в пути на общественном транспорте до ближайшей станции метро «Строгино» займет около 40 минут.
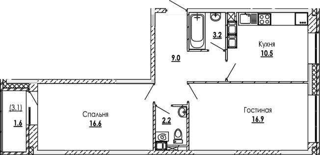
О квартире
Общая площадь
61.3 м²
Жилая площадь
34 м²
Площадь кухни
10.9 м²
Площадь комнат
16.9+17.1 м²
Высота потолков
2.73 м
Подъезд
4
Этаж
10
Окна выходят
На улицу
О доме
Год постройки
2026
Этажность
12
Количество подъездов
5
Материал постройки
Кирпично-монолитный
Материал перекрытий
Монолитные
Отопление
Центральное
Пассажирских лифтов
1
Грузовых лифтов
1
Парковка
Наземная
Расположение
Россия, Московская область, Одинцовский городской округ, Звенигород
Ипотечный калькулятор
Заполните 1 анкету — получите предложения от десятков банков на специальных условиях
Программа ипотеки
Стоимость жилья, ₽
Первый взнос, ₽
Срок кредита
от 5.75%
Ставка
от 51 831 ₽
Платеж в месяц
Расчёт носит информационный характер и не является публичной офертой
Похожие объекты






2-комн. квартира, 58,4 м², 7/12 эт.






2-комн. квартира, 61,4 м², 4/12 эт.






2-комн. квартира, 61,5 м², 10/12 эт.






2-комн. квартира, 60 м², 12/12 эт.
Консультант по новостройкам
8 238 720 ₽
134 400 ₽/м²







