Купить дом на улице Надежды в Микрорайоне Стрелецкое-73/1 в Белгородской области
Россия, Белгородский район, село Стрелецкое, микрорайон Стрелецкое-73/1, улица Надежды
140 м²
Площадь дома
12 сот
Площадь участка
Газобетонный блок
Материал постройки
1
Этажей
Описание
ПОДХОДИТ ПОД СЕМЕЙНУЮ ИПОТЕКУ 6%
Расположение и транспортная доступность
Дом находится в селе Стрелецкое. Удобное расположение обеспечивает лёгкий доступ к основным транспортным магистралям и быстрый путь до центра Белгорода (всего 6 км). Рядом есть остановки общественного транспорта, что делает дом привлекательным для жителей с разными потребностями.
Рядом с домом магазины.
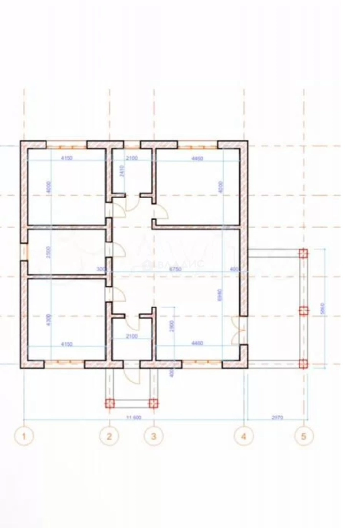
Площадь и планировка
Общая площадь дома — 140 кв. м. Жилая площадь составляет 45 кв. м, а площадь кухни — 25 кв. м. Три комнаты по 15 кв. м каждая позволяют эффективно зонировать пространство под различные нужды. Высота потолков 3 м создаёт ощущение простора. Дом идеально подходит как для молодых специалистов, так и для семей с детьми или пожилых пар.
Ремонт и благоустройство
Дом построен из газобетонных блоков с деревянными перекрытиями, кровля — мягкая черепица. Установлен индивидуальный котёл для отопления. Проведён чистый ремонт, что позволяет новым владельцам сразу заселиться без дополнительных вложений.
Инфраструктура
Участок площадью 12 соток имеет все необходимые коммуникации: электричество, водоснабжение, газ, канализация. Подъезд к участку асфальтированный. Дом подходит для круглогодичного проживания.
Звоните нам прямо сейчас, чтобы узнать больше и записаться на просмотр!
Подходит под любой вид расчетов:
ипотека, военная ипотека, материнский капитал, жилищный сертификат, "Курский сертификат", специальный счёт, Постановление 555.
Мы гарантируем безопасную сделку и юридическую поддержку нашим Клиентам. Поможем одобрить ипотеку с сниженной ставкой.
О доме
Год постройки
2025
Этажей в доме
1
Общая площадь
140 м²
Жилая площадь
45 м²
Площадь кухни
25 м²
Площадь комнат
15+15+15 м²
Материал постройки
Газобетонный блок
Материал перекрытий
Деревянные
Материал кровли
Мягкая черепица
Высота потолков
3 м
Об участке
Площадь участка
12 сот.
Статус участка
Индивидуальное жилищное строительство
Электричество
Есть
Газ
Есть
Водоснабжение
Есть
Канализация
Есть
Без благоустройства участка
Есть
Подъезд к участку
Асфальт
Расположение
Россия, Белгородский район, село Стрелецкое, микрорайон Стрелецкое-73/1, улица Надежды
Ипотечный калькулятор
Заполните 1 анкету — получите предложения от десятков банков на специальных условиях
Программа ипотеки
Стоимость жилья, ₽
Первый взнос, ₽
Срок кредита
от 5.75%
Ставка
от 61 559 ₽
Платеж в месяц
Расчёт носит информационный характер и не является публичной офертой
Предложите свою цену
9 785 000 ₽
69 893 ₽/м²





































