Купить дом на улице Василия Рябчикова в Микрорайоне Стрелецкое-83 в Белгородской области
Россия, Белгородский район, село Стрелецкое, улица Василия Рябчикова
94 м²
Площадь дома
15 сот
Площадь участка
Блочный
Материал постройки
1
Этажей
Описание
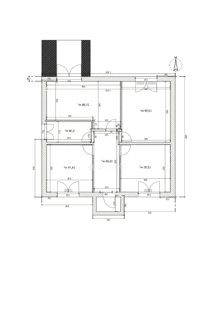
Этот дом идеально подойдёт для семей, которые ценят уют и спокойствие загородной жизни. Дом построен в 2025 году из блочного материала, перекрытия — деревянные, высота потолков — 3 метра, что создаёт ощущение простора и свободы. Общая площадь дома — 94 квадратных метра, жилая — 50 квадратных метров, площадь кухни — 21 квадратный метр. Дом имеет три комнаты и один совмещённый санузел.
Участок площадью 15 соток идеально подходит для загородного отдыха и садоводства. Дом подключён ко всем необходимым коммуникациям: электричеству, водоснабжению, газу и канализации. Водоснабжение — центральное, отопление обеспечивается индивидуальным котлом.
Дом находится всего в 8 километрах от города, что обеспечивает удобный доступ ко всей необходимой инфраструктуре, при этом сохраняя тишину и спокойствие загородной жизни.
Ремонт в состоянии white box позволяет новым владельцам воплотить свои дизайнерские идеи и создать дом мечты.
Не упустите возможность стать владельцем этого прекрасного дома! Звоните нам прямо сейчас, чтобы узнать больше и записаться на просмотр.
Мы гарантируем безопасную сделку и юридическую поддержку нашим клиентам. Поможем одобрить ипотеку с сниженной ставкой.
О доме
Год постройки
2025
Этажей в доме
1
Общая площадь
94 м²
Жилая площадь
50 м²
Площадь кухни
21 м²
Материал постройки
Блочный
Материал перекрытий
Деревянные
Материал кровли
Металлочерепица
Высота потолков
3 м
Совмещенных санузлов
1
Об участке
Площадь участка
15 сот.
Статус участка
Индивидуальное жилищное строительство
Электричество
Есть
Газ
Есть
Водоснабжение
Есть
Канализация
Есть
Без благоустройства участка
Есть
Подъезд к участку
Грунтовка
Расположение
Россия, Белгородский район, село Стрелецкое, улица Василия Рябчикова
Ипотечный калькулятор
Заполните 1 анкету — получите предложения от десятков банков на специальных условиях
Программа ипотеки
Стоимость жилья, ₽
Первый взнос, ₽
Срок кредита
от 5.75%
Ставка
от 50 958 ₽
Платеж в месяц
Расчёт носит информационный характер и не является публичной офертой
Предложите свою цену
8 100 000 ₽
86 170 ₽/м²



























































