Продается 2-комн. квартира, 96.8 м²
Россия, Калининград, Римская улица, 29
96.8 м²
Общая площадь
40.9 м²
Жилая площадь
38.6 м²
Площадь кухни
1 из 8
Этаж
Описание
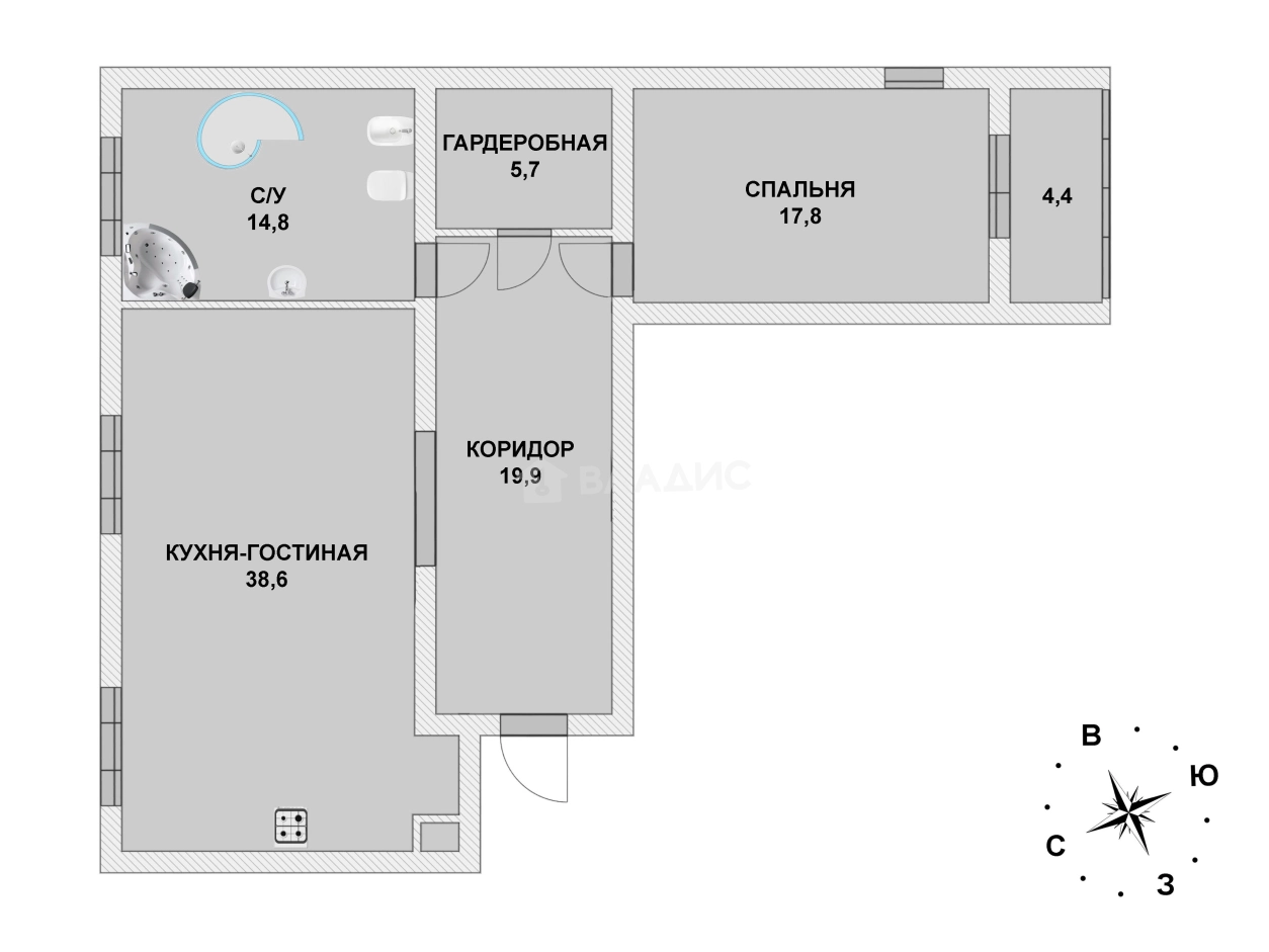
Общая площадь квартиры – 96,8 кв.м.
Кухня-гостиная – 38,6 кв.м.
С/У – 14,8 кв.м.
Спальня с выходом на лоджию – 17,8 кв.м.
✅ Автономное отопление
✅ Высота потолков 2,75 м.
✅ Дорогой (незаконченный) ремонт:
- надежная сейфовая входная дверь;
- венецианская штукатурка;
- мраморные подоконники;
- мраморный электрокамин;
- сплит-система;
- заменены все трубы на медные;
- заменена вся электропроводка на проводку большего сечения;
- проведена система "Умный дом".
- на всех окнах и на лоджии установлены рольставни с электроприводом
✅ В ванной комнате, выполненной в розовых тонах, установлена инсталляция с подвесным унитазом и биде. Удобная ванна-джакузи. Душевая кабина-улитка.
✅ В большой кухне-гостиной установлен мраморный электрокамин
✅ Современный кирпичный дом комфорт класса 2007 г.п.
✅ Уникальное и престижное место для проживания!
В десяти-пятнадцати минутах ходьбы расположено Верхнее озеро, Музей Янтаря, Балтийский Федеральный Университет им. И. Канта и развлекательный комплекс «Резиденция Королей»
Квартира ждет своих хозяев!
Приходите на просмотр, и вы захотите здесь жить!
❗ Возможен обмен с доплатой (на недвижимость и не только)!
С АН Авеню-Риэлт Владис вы получаете:
☝️ Полную юридическую проверку объекта;
☝️ Помощь в реализации материнского капитала, военной ипотеки и всех видов субсидий;
☝️ Льготные условия страхования и ускоренные сроки рассмотрения ипотеки;
☝️ Бесплатное оформление ипотеки!
☝️ Ответственность агентства застрахована!
Дарим 300 000 рублей на путешествие! Покупайте или продавайте недвижимость вместе с агентством "Авеню-Риэлт Владис" и получайте шанс отправиться в путешествие Вашей мечты! Направление путевки Вы можете определить самостоятельно. Победитель будет выбран случайным образом в конце декабря.
Подробнее узнавайте у своего агента или в офисах «Авеню-Риэлт Владис».
О квартире
Общая площадь
96.8 м²
Жилая площадь
40.9 м²
Площадь кухни
38.6 м²
Площадь комнат
23.1+17,8 м²
Подъезд
1
Этаж
1
Расположение квартиры
угловая
Окна выходят
На улицу, Во двор
Совмещенных санузлов
1
Ремонт
Евро
О доме
Год постройки
2007
Этажность
8
Количество подъездов
2
Материал постройки
Кирпичный
Материал перекрытий
Ж/б плиты
Отопление
Индивидуальный котел
Пассажирских лифтов
1
Парковка
Наземная
Огороженная территория
Да
Расположение
Россия, Калининград, Римская улица, 29
Ипотечный калькулятор
Заполните 1 анкету — получите предложения от десятков банков на специальных условиях
Программа ипотеки
Стоимость жилья, ₽
Первый взнос, ₽
Срок кредита
от 5.75%
Ставка
от 94 366 ₽
Платеж в месяц
Расчёт носит информационный характер и не является публичной офертой
Похожие объекты
Предложите свою цену
15 000 000 ₽
154 959 ₽/м²
































































































































































































