Купить дом на улице Узкоколейный проезд в Калининградской области
Россия, Калининградская область, Гурьевский муниципальный округ, СНТ Авангард, Узкоколейный проезд
108 м²
Площадь дома
6 сот
Площадь участка
Газобетонный блок
Материал постройки
1
Этажей
Описание
Ориентиры: п.Черемхово,п.Сазоновка,г.Гурьевск.
Характеристики дома:
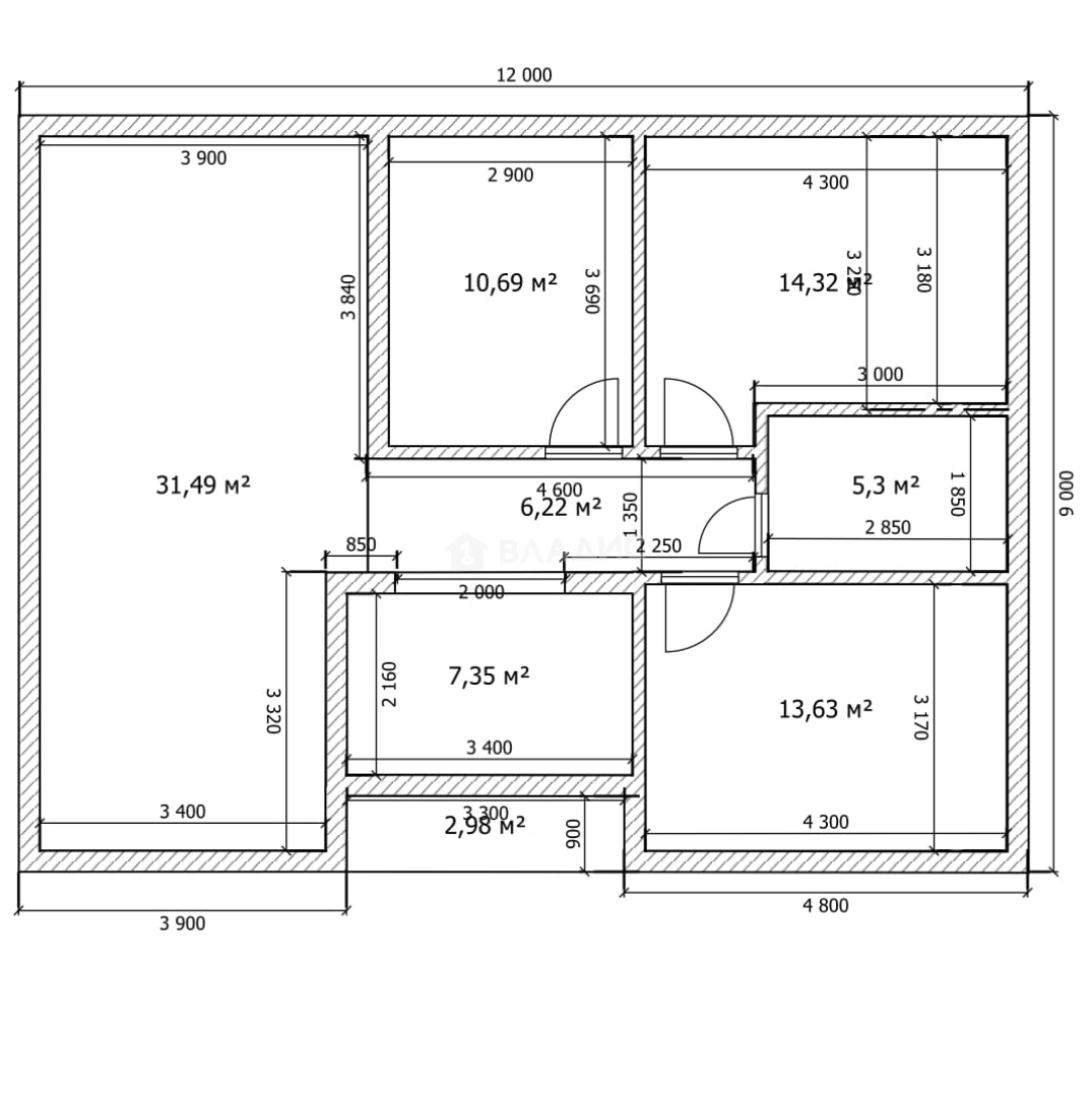
Площадь дома –108м2.
Планировка –1 этаж кухня-гостиная , три комнаты, гардеробная, совмещенный санузел.
Высота потолка -3,20 м.
Материал стен-газосиликатный блок.
Фундамент- лента+монолитная плита .
Перекрытия- деревянные.
Кровля-металлочерепица .
Год постройки-2025г.
Состояние-качественный серый ключ.
Коммуникации:
Установлен 2хконтурный котел. Разведены теплые полы .
Свет подключен. Водоснабжение- центральная общая скважина, канализация- септик.
Характеристики участка:
Размер участка – 6с.
Участок в собственности.Ровный,сухой,не подтапливается.
Хорошие подъездные пути, асфальт .
Отдел загородной недвижимости – исполняем мечты о собственном доме.
О доме
Год постройки
2025
Этажей в доме
1
Общая площадь
108 м²
Жилая площадь
38.64 м²
Площадь кухни
31.49 м²
Площадь комнат
10,69+14,32+13,63 м²
Материал постройки
Газобетонный блок
Материал перекрытий
Деревянные
Материал кровли
Металлочерепица
Высота потолков
3.2 м
Об участке
Площадь участка
6 сот.
Статус участка
Индивидуальное жилищное строительство
Электричество
Есть
Водоснабжение
Есть
Канализация
Есть
Без благоустройства участка
Есть
Подъезд к участку
Асфальт
Расположение
Россия, Калининградская область, Гурьевский муниципальный округ, СНТ Авангард, Узкоколейный проезд
Ипотечный калькулятор
Заполните 1 анкету — получите предложения от десятков банков на специальных условиях
Программа ипотеки
Стоимость жилья, ₽
Первый взнос, ₽
Срок кредита
от 5.75%
Ставка
от 45 925 ₽
Платеж в месяц
Расчёт носит информационный характер и не является публичной офертой
Похожие объекты






















Дом, 102 м², 6 сот.





Дом, 105 м², 4,1 сот.










Дом, 100 м², 4,1 сот.









Дом, 92 м², 4,1 сот.
Предложите свою цену
7 300 000 ₽
67 593 ₽/м²


































