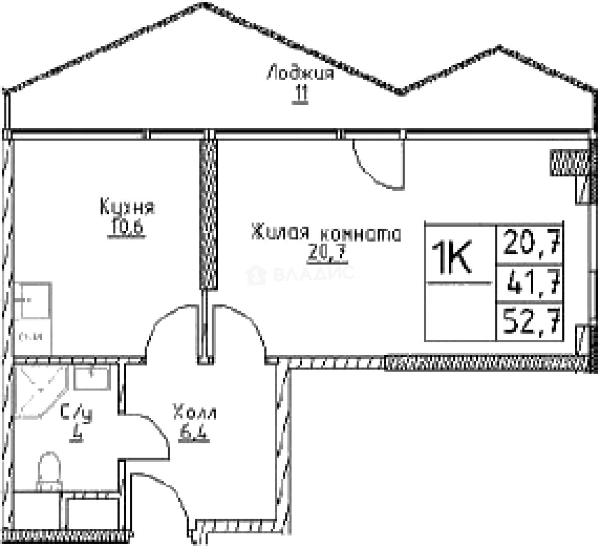
Продается 1-комн. квартира, 52.7 м²
Россия, Москва, улица Намёткина, 10А
Воронцовская
9 мин.
52.7 м²
Общая площадь
20.7 м²
Жилая площадь
10.6 м²
Площадь кухни
11 из 29
Этаж
Описание
С верхних этажей «Nametkin Tower» открываются потрясающие панорамные виды на город. Окна выходят сразу на три стороны света. Высота окон составляет 2,7 метра. Энергоэффективные окна с отличной звукоизоляцией обеспечивают тишину и уют. Система вентиляции создает идеальную атмосферу в любое время года, а приборы высокой очистки увлажняют воздух, избавляя его от городской пыли и аллергенов.
Благоустройство территории «Nametkin Tower» разделено на 2 пространства — общественное и приватное. Проезд для автомобилей во внутренний двор закрыт. На придомовой территории оборудованы дорожки для прогулок, уединенные беседки среди высаженного сада крупномерных деревьев и безопасные детские площадки. Для резидентов на 25 этаже предусмотрена уникальная терраса с коворкингом, приватными лаунж зонами, баром, игровыми комнатами, залом для занятия спортом и танцами. Все корпуса объединяет двухуровневый подземный паркинг.
Комплекс апартаментов «Nametkin Tower» находится в районе Черемушки. В пешей доступности находятся магазины, кафе, рестораны, салоны красоты, детские сады, школы, банки, Воронцовский парк. До метро «Калужская», «Воронцовская», «Новые Черемушки» — 10 минут пешком.
О квартире
Общая площадь
52.7 м²
Жилая площадь
20.7 м²
Площадь кухни
10.6 м²
Площадь комнат
20.7 м²
Высота потолков
3.1 м
Подъезд
2
Этаж
11
Окна выходят
На улицу
О доме
Год постройки
2025
Этажность
29
Количество подъездов
4
Материал постройки
Монолитный
Материал перекрытий
Ж/б плиты
Отопление
Центральное
Пассажирских лифтов
1
Грузовых лифтов
1
Парковка
Подземная
Расположение
Россия, Москва, улица Намёткина, 10А
Воронцовская
9 мин.
Калужская
11 мин.
Новые Черемушки
11 мин.
Зюзино
20 мин.
Профсоюзная
23 мин.
Новаторская
27 мин.
Новаторская
27 мин.
Беляево
4 мин.
Ипотечный калькулятор
Заполните 1 анкету — получите предложения от десятков банков на специальных условиях
Программа ипотеки
Стоимость жилья, ₽
Первый взнос, ₽
Срок кредита
от 5.75%
Ставка
от 132 682 ₽
Платеж в месяц
Расчёт носит информационный характер и не является публичной офертой
Похожие объекты























2-комн. квартира, 55,8 м², 11/29 эт.
Воронцовская
11 мин.






2-комн. квартира, 55,8 м², 16/29 эт.
Воронцовская
9 мин.







2-комн. квартира, 47,1 м², 19/29 эт.
Воронцовская
9 мин.
Консультант по новостройкам
21 090 540 ₽
400 200 ₽/м²







