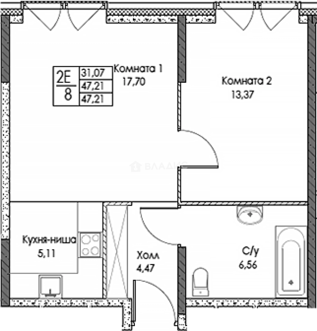
Продается 2-комн. квартира, 47.21 м²
Россия, Москва, Восточный административный округ, район Преображенское
Преображенская площадь
12 мин.
47.21 м²
Общая площадь
31.07 м²
Жилая площадь
5.11 м²
Площадь кухни
16 из 20
Этаж
Описание
Комплекс предлагает широкий выбор апартаментов: от уютных студий площадью 23,8 кв. метров до 4-комнатных апартаментов. Также есть апартаменты с видовыми террасами на парк «Сокольники» на западной стороне дома. Квартиры, как классического типа, так и европланировки, сдаются без отделки, с высокими потолками 3,1 метров и панорамными окнами, начиная с 4 этажа и выше.
В комплексе предусмотрены различные зоны отдыха: детские игровые пространства, площадка для воркаута, прогулочные зоны, амфитеатр и кафе. На территории двора выполнен ландшафтный дизайн, создающий спокойное пространство для отдыха. Особенностью комплекса является смотровая площадка на реку Яузу и парк «Сокольники». Пространство двора является зоной без машин, для автомобилей предусмотрен подземный паркинг.
Проект располагается в историческом районе Преображенское с развитой инфраструктурой и удобной транспортной доступностью. Рядом находится несколько школ, детские сады, поликлиники, аптеки, спортивный комплекс, фитнес-клубы, банки и супермаркеты. В 300 метрах от комплекса находится парк «Сокольники». Удобный выезд на улицу Стромынка и ТТК позволяет доехать до центра за 15 минут. Метро «Преображенская площадь» находится в 15 минутах пешком.
О квартире
Общая площадь
47.21 м²
Жилая площадь
31.07 м²
Площадь кухни
5.11 м²
Площадь комнат
17.70+13.37 м²
Высота потолков
3.1 м
Подъезд
1
Этаж
16
Окна выходят
На улицу
О доме
Год постройки
2026
Этажность
20
Количество подъездов
1
Материал постройки
Кирпично-монолитный
Материал перекрытий
Монолитные
Отопление
Центральное
Парковка
Подземная
Расположение
Россия, Москва, Восточный административный округ, район Преображенское
Преображенская площадь
12 мин.
Сокольники
21 мин.
Сокольники
22 мин.
Электрозаводская
26 мин.
Электрозаводская
26 мин.
Ипотечный калькулятор
Заполните 1 анкету — получите предложения от десятков банков на специальных условиях
Программа ипотеки
Стоимость жилья, ₽
Первый взнос, ₽
Срок кредита
от 5.75%
Ставка
от 117 078 ₽
Платеж в месяц
Расчёт носит информационный характер и не является публичной офертой
Похожие объекты









1-комн. квартира, 41,5 м², 15/45 эт.
Бульвар Рокоссовского
2 мин.








1-комн. квартира, 41,4 м², 2/45 эт.
Бульвар Рокоссовского
2 мин.









1-комн. квартира, 42,5 м², 3/45 эт.
Бульвар Рокоссовского
2 мин.
Консультант по новостройкам
18 610 182 ₽
394 200 ₽/м²




















