Продается 2-комн. квартира, 54.1 м²
Россия, Москва, Новомосковский административный округ, район Коммунарка, жилой комплекс Скандинавия, 25.5
Потапово
14 мин.
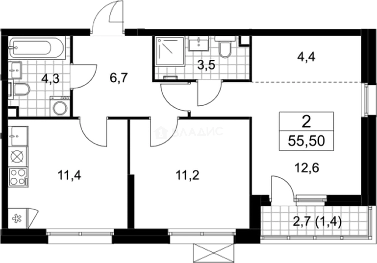
54.1 м²
Общая площадь
23.8 м²
Жилая площадь
11.4 м²
Площадь кухни
2 из 17
Этаж
Описание
Из окон открываются виды на зеленые зоны. Квартиры передаются дольщикам без отделки, также в некоторых корпусах застройщик предлагает чистовую отделку на выбор в трех вариантах: «Скандинавское утро», «Классический стиль», «Вечер в Скандинавии».
В состав объекта входят детский сад и школа, а также подземный паркинг. На территории жилого комплекса находится собственный парк для отдыха и спорта с 20 многовековыми дубами. Во дворе расположены прогулочная аллея и выезд на велосипедную дорожку длиной в 15 км. Напротив дома находятся благоустроенные зоны отдыха у ручьев и пруда. Также в составе объекта есть торгово-общественный комплекс, собственная баня у леса и SPA-центр.
Жилой квартал окружен лесными массивами, для жителей предусмотрен собственный выход в Бутовский лесопарк. В пешей доступности находятся продуктовые магазины, спортивные и медицинские центры. В 10 минутах транспортом расположен ТРЦ «МЕГА Тёплый стан», где работают «Ашан» и «Икеа». Выезд на МКАД, а также метро «Тёплый Стан» и «Коммунарка» находится в 20 минутах транспортом. В 2024 году в 5 минутах пешком от комплекса будет открыто метро «Потапово».
О квартире
Общая площадь
54.1 м²
Жилая площадь
23.8 м²
Площадь кухни
11.4 м²
Площадь комнат
11.2+12.6 м²
Высота потолков
3.1 м
Подъезд
3
Этаж
2
Окна выходят
На улицу
О доме
Год постройки
2025
Этажность
17
Количество подъездов
3
Материал постройки
Кирпично-монолитный
Материал перекрытий
Монолитные
Отопление
Центральное
Парковка
Подземная
Расположение
Россия, Москва, Новомосковский административный округ, район Коммунарка, жилой комплекс Скандинавия, 25.5
Потапово
14 мин.
Новомосковская (Коммунарка)
27 мин.
Бунинская аллея
4 мин.
Улица Горчакова
4 мин.
Бульвар Адмирала Ушакова
4 мин.
Ипотечный калькулятор
Заполните 1 анкету — получите предложения от десятков банков на специальных условиях
Программа ипотеки
Стоимость жилья, ₽
Первый взнос, ₽
Срок кредита
от 5.75%
Ставка
от 89 228 ₽
Платеж в месяц
Расчёт носит информационный характер и не является публичной офертой
Похожие объекты















2-комн. квартира, 53,1 м², 18/22 эт.
Коммунарка
24 мин.








2-комн. квартира, 58 м², 4/24 эт.
Улица Горчакова
14 мин.








2-комн. квартира, 58,3 м², 8/24 эт.
Улица Горчакова
14 мин.












2-комн. квартира, 53,7 м², 7/17 эт.
Потапово
14 мин.
Консультант по новостройкам
14 183 159 ₽
262 166 ₽/м²













